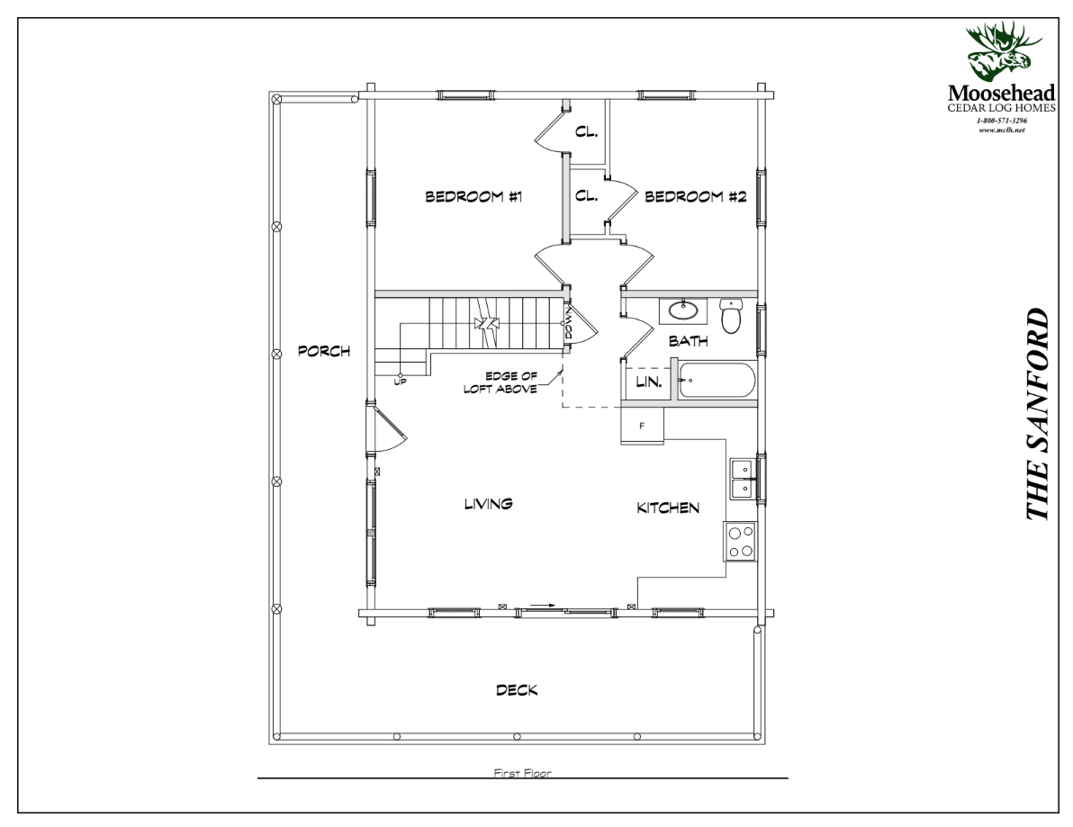
Sanford
The Sanford makes the most of its efficient square footage, with three bedrooms smartly tucked into less than 1200 square feet. The covered front porch entry opens up to the vaulted living room and kitchen, with floor to ceiling windows and sliding doors to the deck. Down the hall is a full bathroom and two bedrooms, both with plenty of closet space. Upstairs is a lofted landing which opens to the master suite, complete with a full bathroom and large closet. The large wraparound deck adds to the living space, so there’s room for the whole crew.

