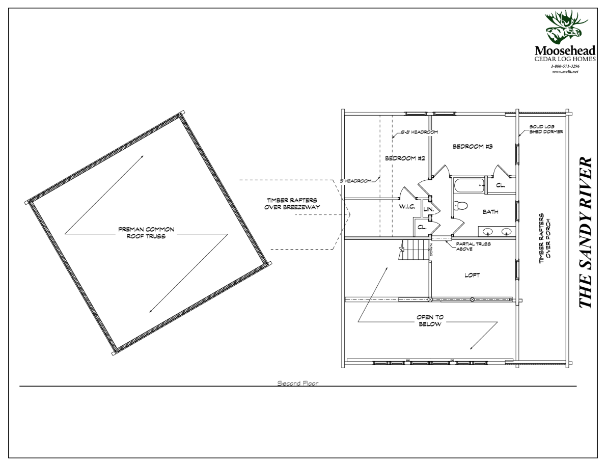
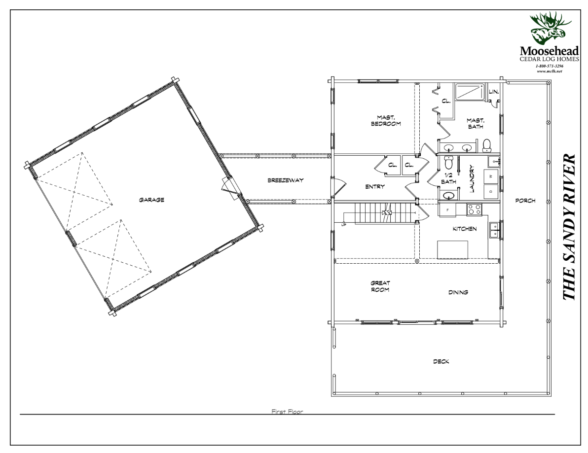
Sandy River
The Sandy River is carefully designed to make the most of its size. At just under 1800 square feet, it’s small enough to manage but has plenty of space for entertaining. The two car garage is attached to the main house by a charming covered breezeway, which leads to a large entry with direct access to a powder room and laundry room. To the left is the master suite, and to the right is the open-concept great room, dining room, and kitchen. The great room opens on to a large deck, which wraps around to a covered side porch. The two upstairs bedrooms share a loft and full bathroom with plenty of storage throughout.

