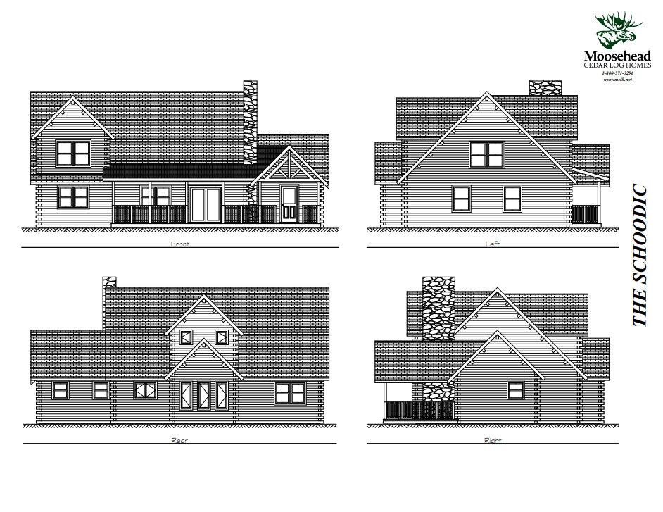
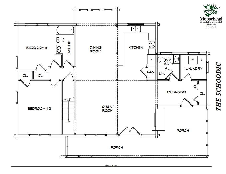
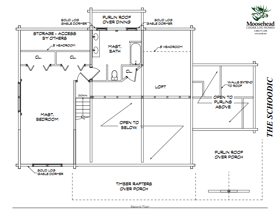
Schoodic
Practicality and style are the hallmarks of the Schoodic design. The striking exposed chimney and rustic timber frame truss beams of the front porch set the tone before you even step inside. From the spacious mudroom, there’s easy access to the laundry room, coat closet, and powder room, with plenty of space for custom entry storage. To the left, the vaulted great room opens up the center of the home with French doors to the covered front porch beyond. To the right is the kitchen with large pantry, and the bright and sunny dining room, extended by a windowed bump out to the backyard. Two bedrooms and a full bathroom complete the first floor. The master suite encompasses almost the entire second floor, with a loft looking down to the great room below. The master suite features two walk-in closets and a full bath. Every day is beautiful in the Schoodic!

