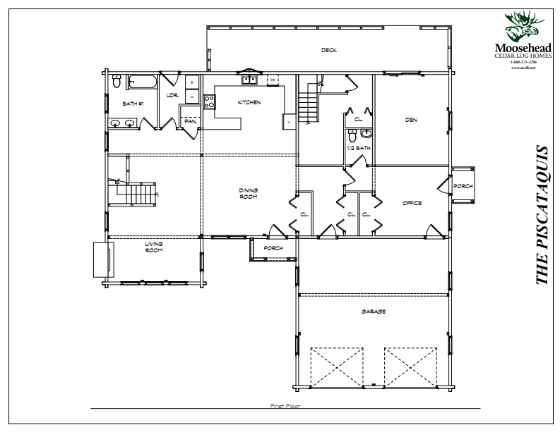
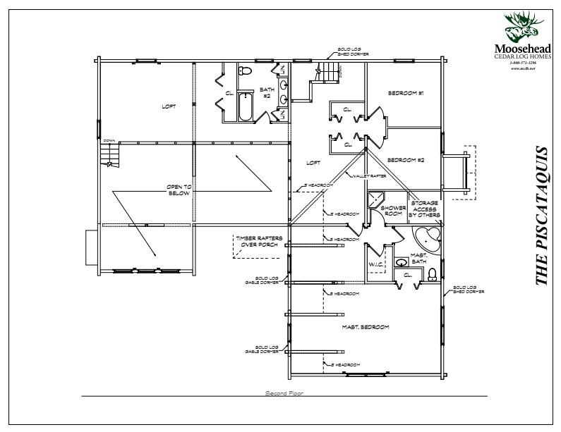
Piscataquis
The Piscataquis really has it all. At over 3600 square feet with multiple living spaces, this design could work for a shared vacation home, a large family, or add a kitchenette to create an in-law suite. The attached garage has two entrances- one to the home office which also opens up to a side porch, and one to the spacious hallway with lots of closet space. Off the hallway is a powder room and one of the two staircases leading to the loft. The covered front porch entrance leads to the open-concept dining room and kitchen with views to the back deck. The vaulted living room wraps around the front, just past the main staircase. A full bathroom, laundry room, and pantry complete the first floor. The lofted second floor has even more flexible living space, plus two bathrooms, three bedrooms, and plenty of storage.

