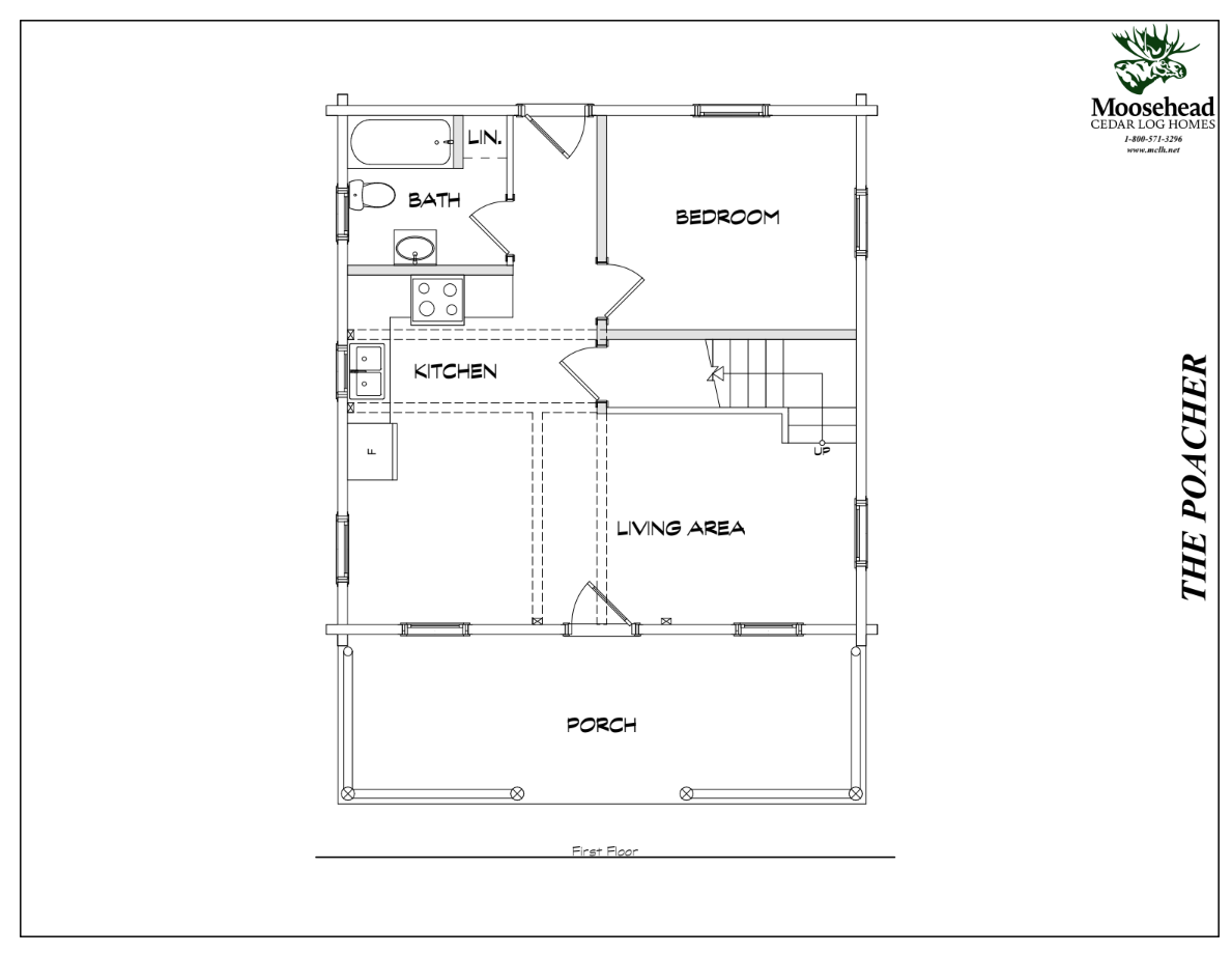
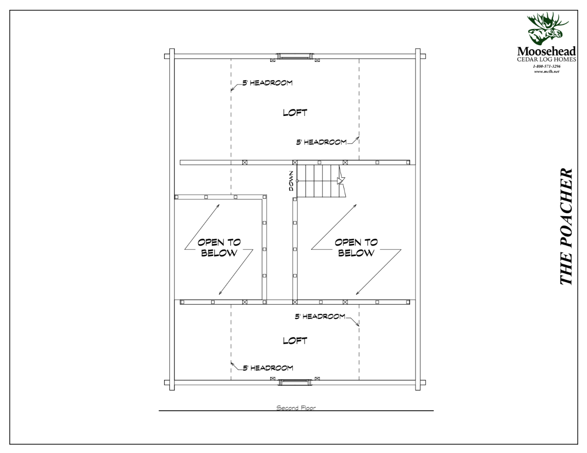
Poacher
If you’ve been dreaming of a simple log cabin in the woods, the Poacher is for you. With its fully covered front porch and open-concept living area, it has all the hallmarks of a traditional rustic cabin. The vaulted living room opens up to the kitchen and dining area, giving it a spacious feeling despite its efficient size. The bedroom and full bathroom complete the first floor. Upstairs features two lofts, connected by a catwalk overlooking the main living area below. For a weekend getaway or everyday simple living, the Poacher is ready to build.
Gallery
Some photos show customized options not included in the basic package.

