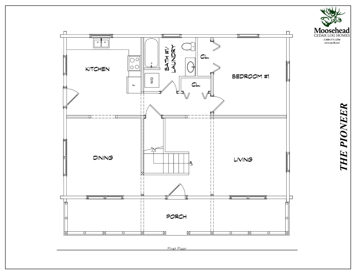
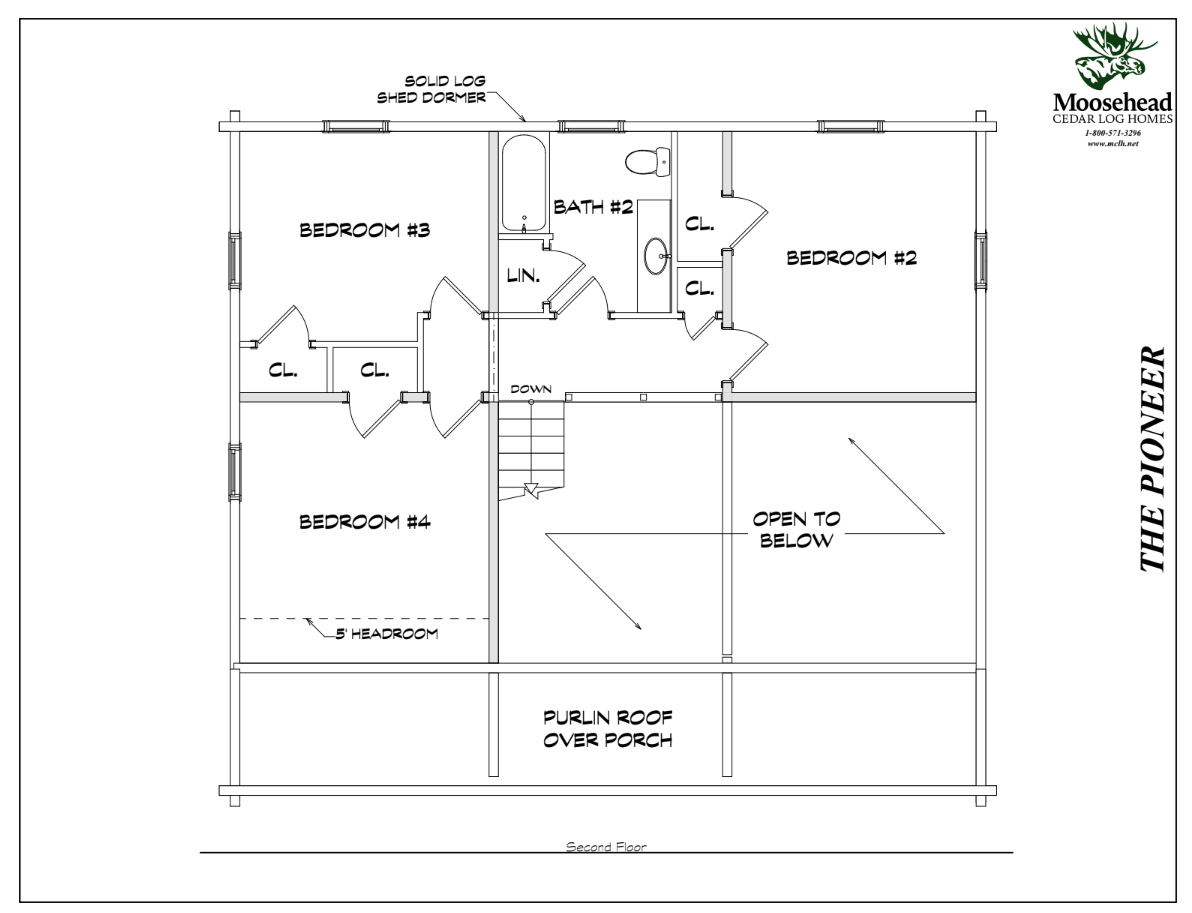
Pioneer
With four bedrooms and a spacious dining room, the Pioneer is perfect for a big family, but can easily be customized for any lifestyle. From the covered porch entry, you’re greeted by an L-shaped staircase and vaulted living room. Below the loft is a first floor bedroom with sliding glass doors to the backyard, so it would also make a great playroom, office, or laundry room. Next is a full bathroom and large kitchen with outdoor access for a patio or even an attached garage. The dining room completes the first floor, and could easily become a family room or study. Upstairs are three more bedrooms and a second full bathroom, connected by a balcony overlooking the living room. Keep the Pioneer as it is or make it your own!

