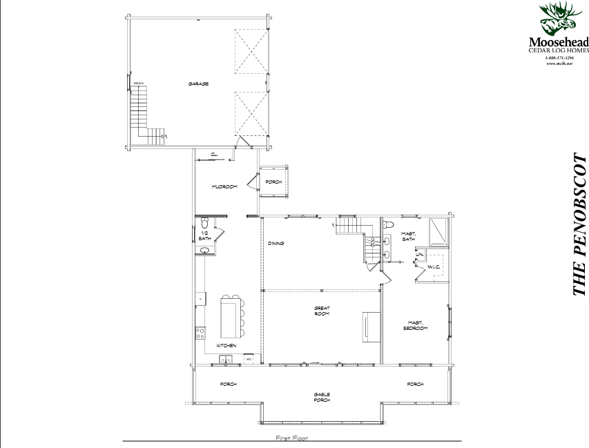
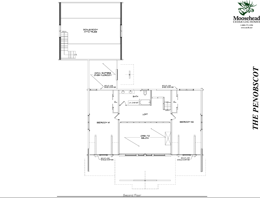
Penobscot
The Penobscot combines impressive design with everyday comfort. The vaulted great room flows into the kitchen and dining area, opening to covered porches for easy indoor-outdoor living. The first-floor master suite includes a walk-in closet and private bath, while upstairs offers two bedrooms, a loft, and a bonus room for added space and flexibility. The Penobscot is designed to flow efficiently with your daily routine, with plenty of space to host the whole crew.

