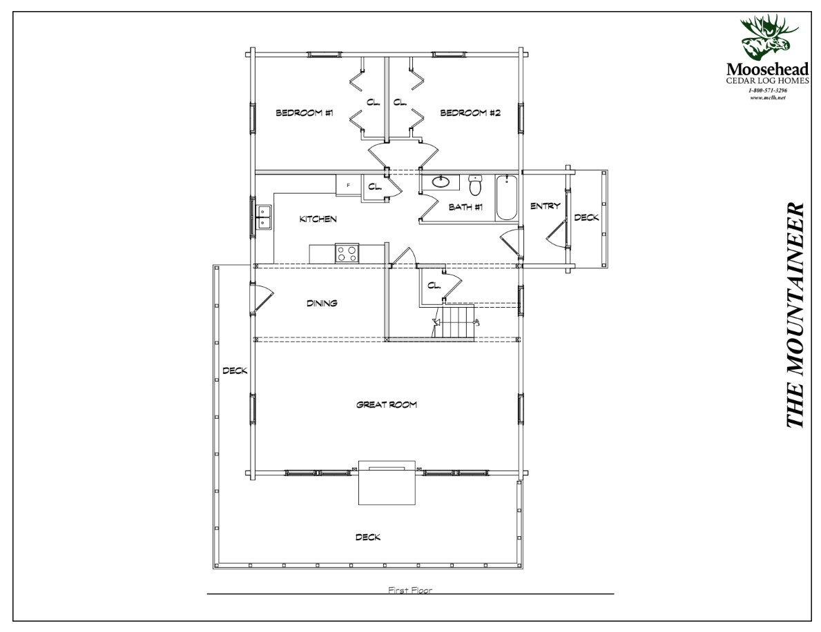
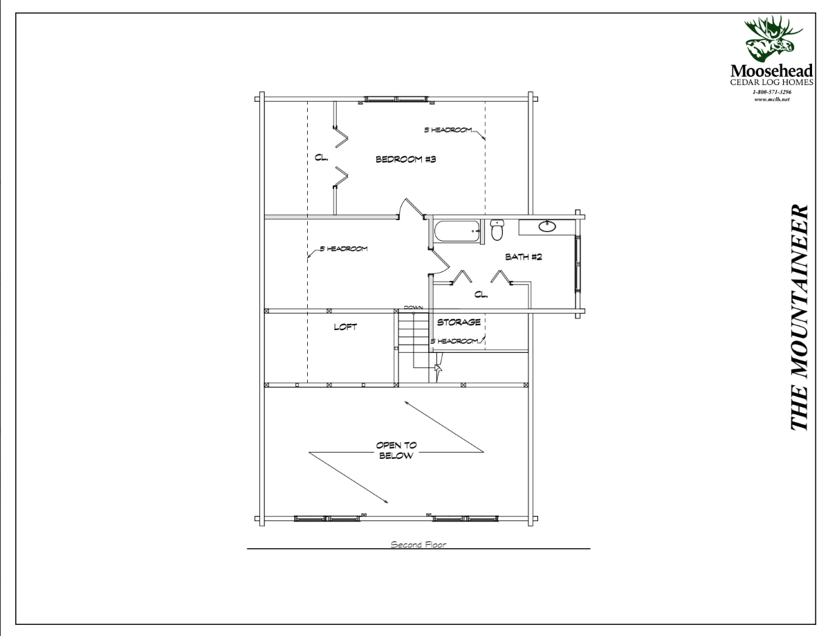
Mountaineer
3 Bedrooms - 2 Bathroom - 2099 Sq Ft - Large Wraparound Deck
The design of the Mountaineer works just as well for entertaining as it does for daily living. From the side porch, the spacious main entrance has plenty of room for boots and bags, before opening up to the foyer. A large coat closet is smartly tucked into the corner of the L-shaped staircase, leaving plenty of room for a household command center. The kitchen is straight ahead, opening up to the dining room with direct access to the side deck- the perfect place for your grill. The vaulted great room lies just beyond, featuring floor to ceiling windows overlooking the large front deck. Completing the first floor are two bedrooms with plenty of closet space. The master suite is upstairs, with a full bathroom, spacious loft, and plenty of storage. The hardworking design of the Mountaineer will make your busy life feel a little more relaxed.
Gallery
Some photos show customized options not included in the basic package.

