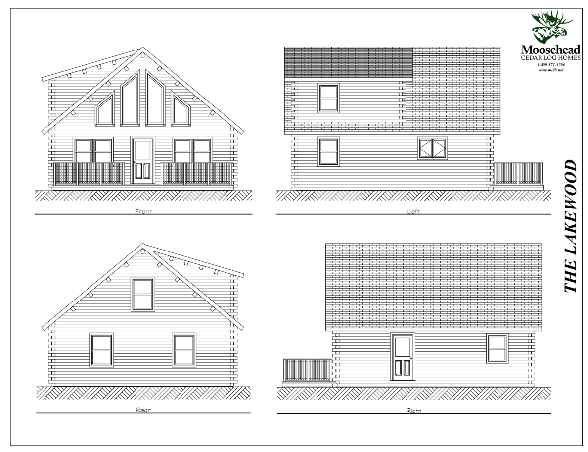
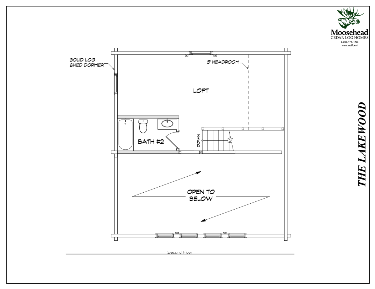
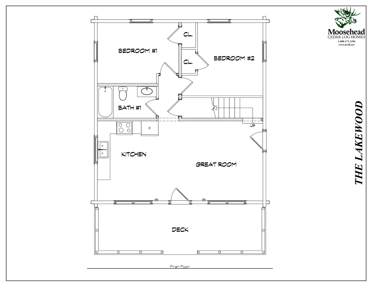
Lakewood
Similar to the Lakeside model, the Lakewood features a classic flying gable over a front deck, giving the feeling of a rustic waterfront retreat no matter where you build. Step into the main living area from the front deck- a vaulted, open space room with an L-shaped kitchen on the left and floor to ceiling windows on the front. Past the kitchen is a full bathroom shared by two bedrooms. The upstairs loft is a large, flexible open space with its own full bathroom- perfect for guests or as a private master suite. The Lakewood is everything you need in a classic log cabin.
Gallery
Some photos show customized options not included in the basic package.

