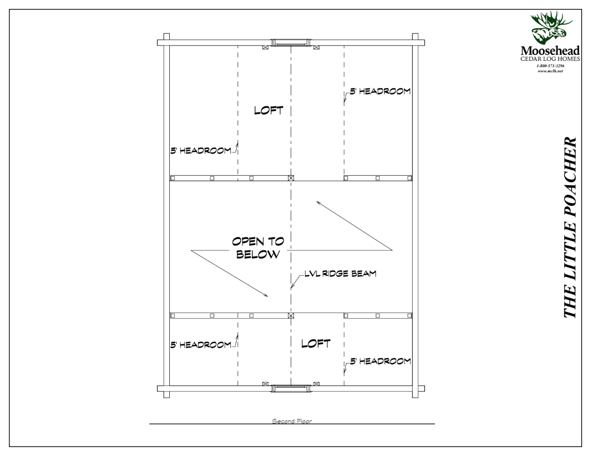
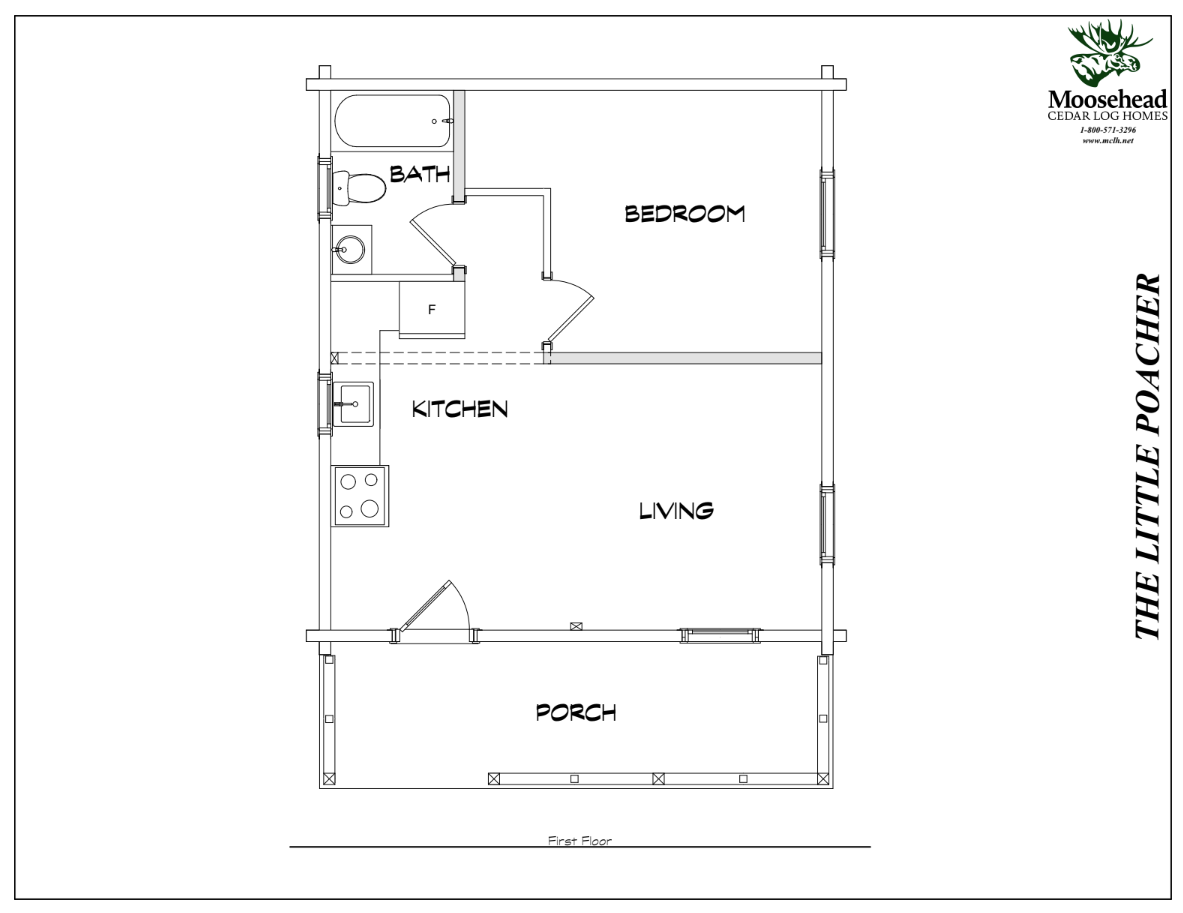
Little Poacher
The Little Poacher gives you everything you need, and nothing you don’t. The covered front entrance is perfect for outdoor gear storage, a grill, or just a simple rocking chair. Step inside to the main living area and kitchen, with a generous full bath and large bedroom beyond. Two separate lofts above are just the right size for extra beds, storage, or office space. If simple cabin life is what you’re looking for, this is your place.

