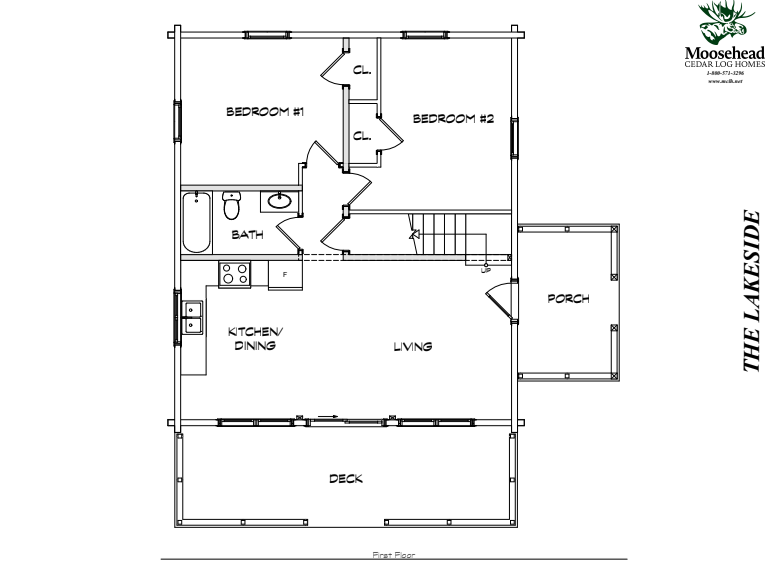
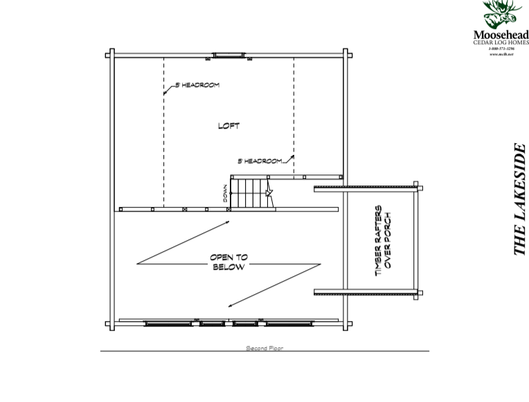
Lakeside
The Lakeside features the classic flying gable, designed for extra protection in a northern waterfront landscape. The covered side porch entrance leads to the vaulted main living space, with an L-shaped kitchen at the end and access to the front deck on the left. A full bathroom and two bedrooms complete the first floor. Upstairs is a large loft with plenty of space for more guests, storage, or both! No matter where you build your Lakeside, the striking design will offer style and practicality.
Gallery
Some photos show customized options not included in the basic package.

