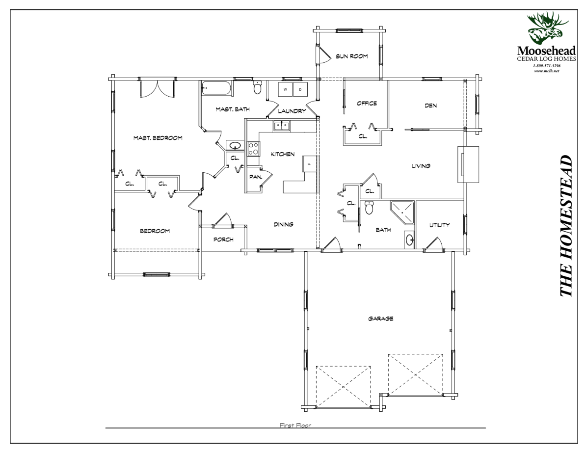
Homestead
The Homestead is an inviting and practical design, thoughtfully laid out to maximize space and comfort. From the covered porch, enter the spacious foyer with the dining room to the right and both bedrooms angled to the left. The master suite wraps around the back to include French doors to the backyard, a full bathroom, and its own entrance to the laundry room. Enter from the attached two-car garage to find a bathroom with stand-up shower on the right, and the dining room and kitchen to the left. The sunroom extends off the back, with the home office, den, and great room wrapping around the right side. The Homestead is the perfect blend of practicality and charm.

