Hideaway
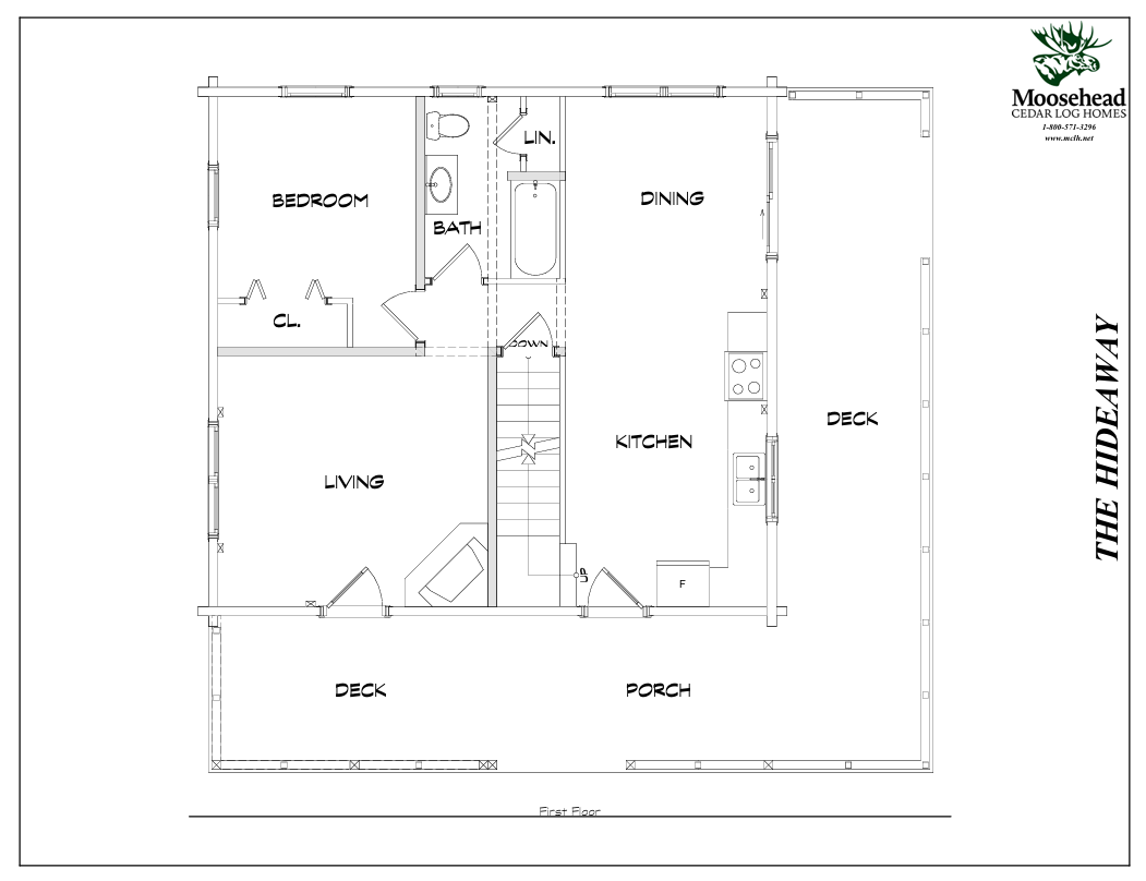
At under 1200 square feet, the Hideaway packs a lot of charm into an efficient space. The wraparound porch spans two full sides, and the private deck off the master bedroom add up to over 600 square feet of outdoor living space. Two front doors access the kitchen and living room, divided by the central staircase. The kitchen opens up to the dining room (both vaulted) with sliding glass door access to the deck. Beyond the living room is the first floor bedroom and full bath. Upstairs, the master bedroom spans the full length of the left side, with two closets and access to a private deck. Bring your grill and patio set, outdoor living is a breeze with the Hideaway.

