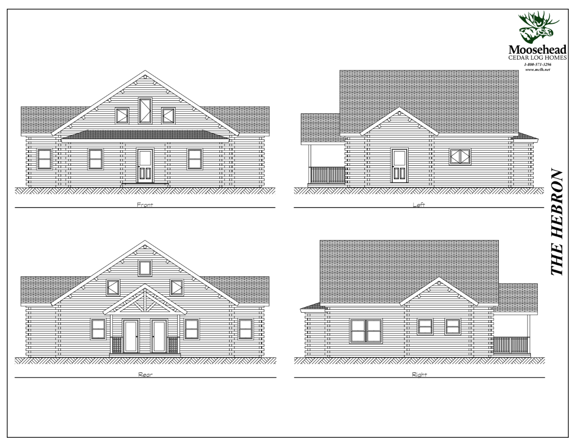
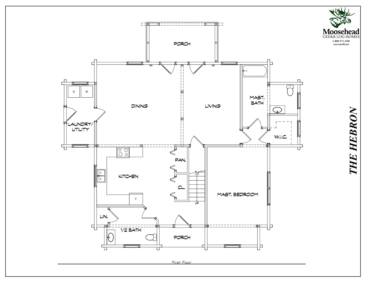
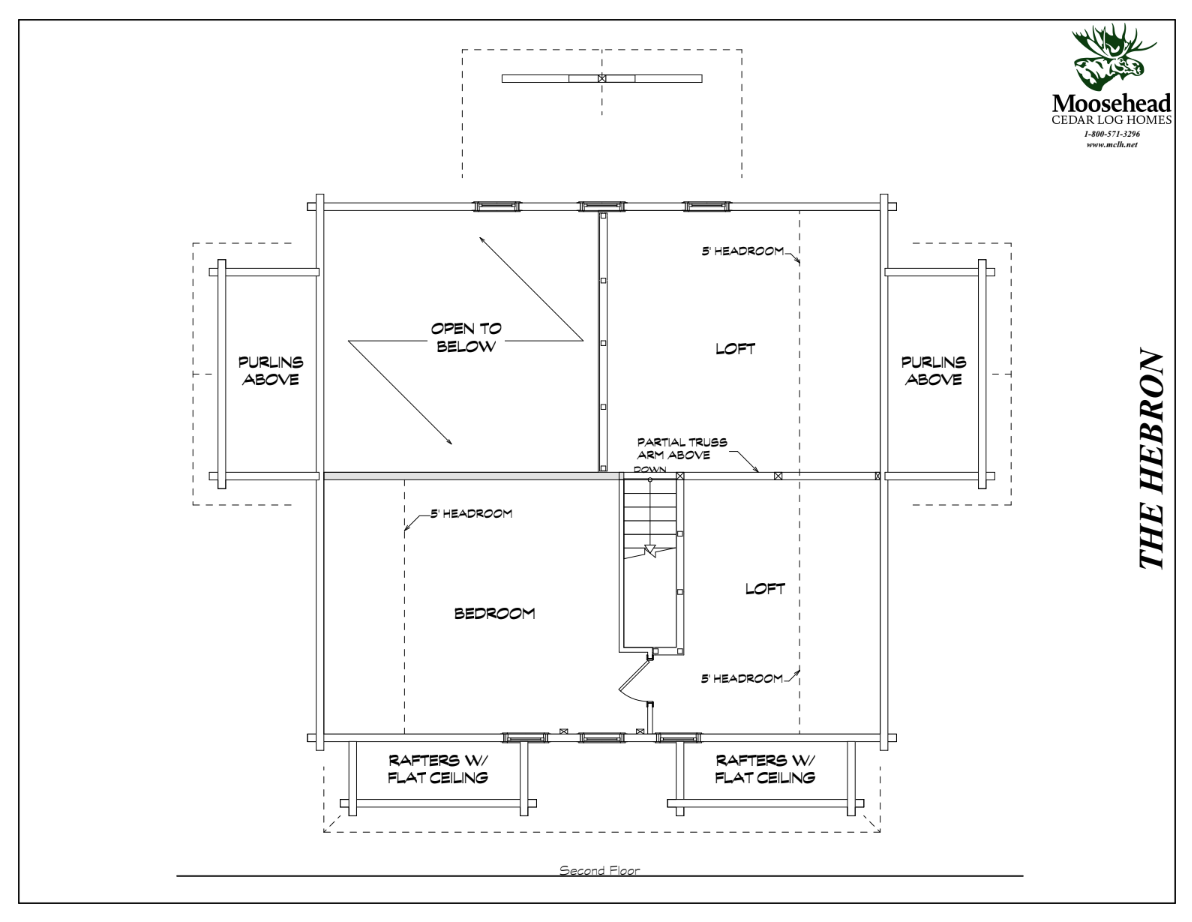
Hebron
The Hebron’s deceptively simple design is both attractive and functional. The cozy front entrance opens to the kitchen, complete with plenty of storage, and a sunny powder room with a linen closet. Beyond the kitchen is a vaulted dining room leading to a large back porch, and laundry room with its own outdoor entrance- perfect for easy access to a clothes line. The dining room opens up to the living room, which leads to the large master suite comprising an entire side of the home. Upstairs is a second bedroom and large loft with plenty of storage. The well-balanced architecture of the Hebron welcomes you to live beautifully.

