Haystack
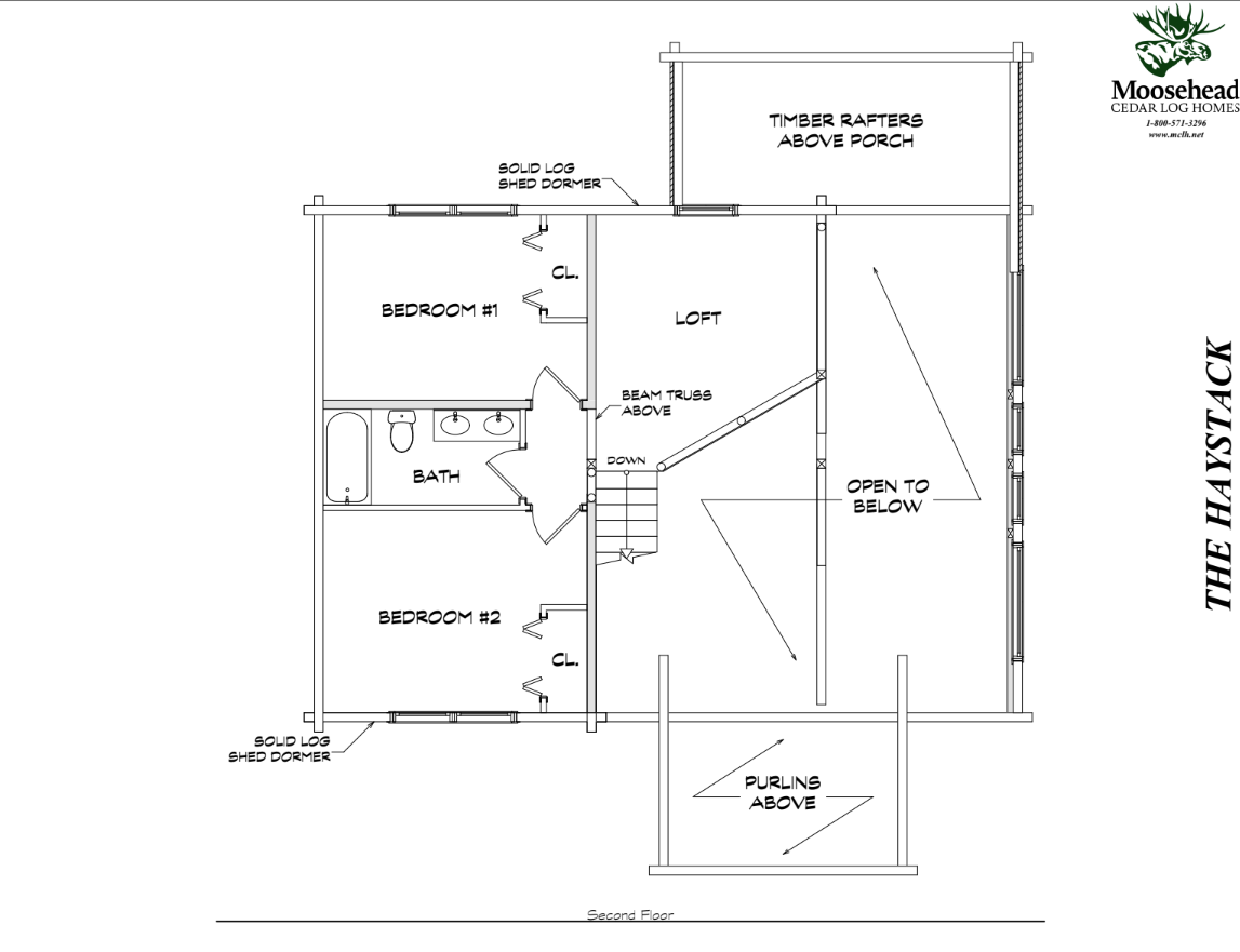
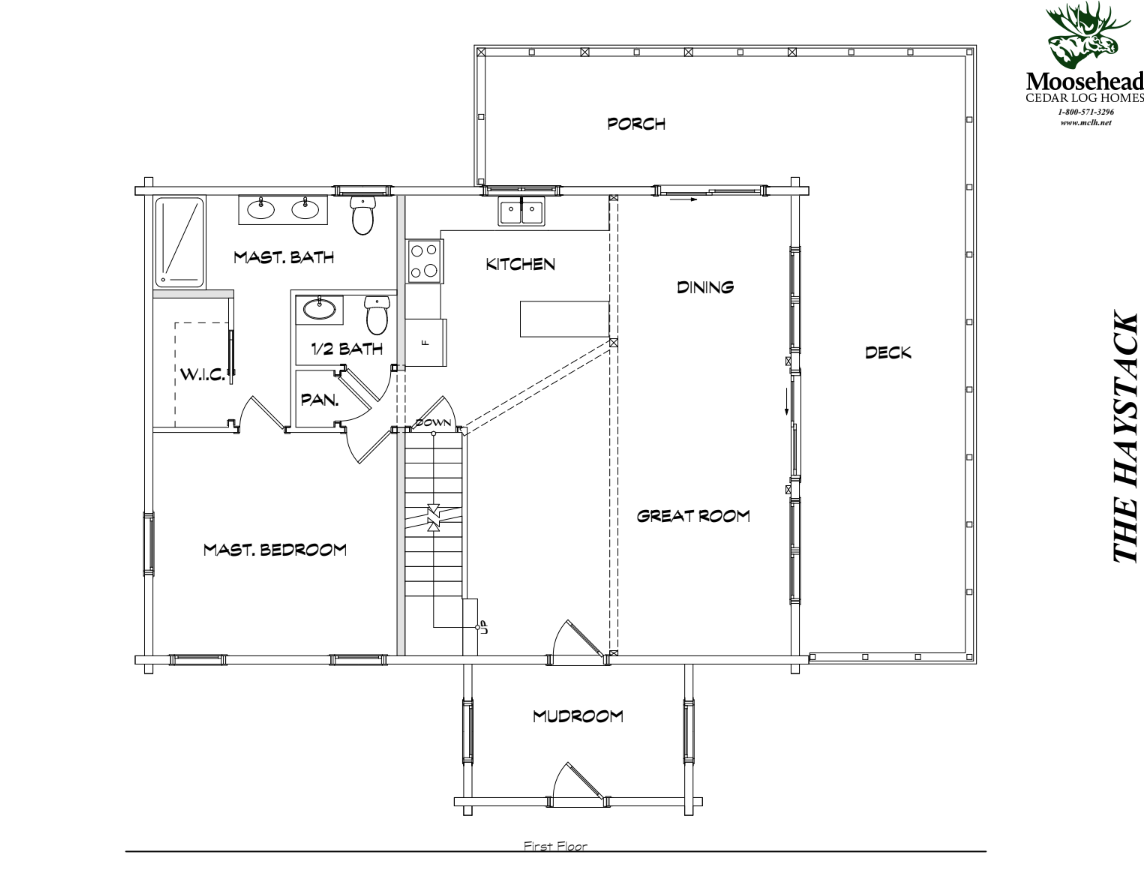
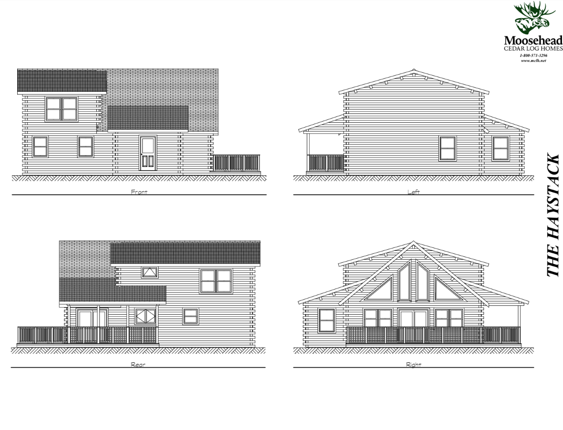
The eye-catching design of the Haystack combines classic log cabin aesthetics with Craftsman-inspired architecture. The result is a stunning home both inside and out. Enter into the spacious mudroom, with plenty of natural light from two large windows and vaulted ceilings. The open floor plan lies ahead, with two stories of windows on the right, including sliding glass doors to the deck. The stairs on the left envelope the space, and the L-shaped kitchen is straight ahead with a dining area opening to the covered porch. A powder room and pantry are tucked just outside the kitchen. The master suite encompasses the left third of the main floor, with a large walk-in closet and spacious full bathroom. The loft above incorporates an angled rail for a view of the great room below. Also upstairs are two more bedrooms and a second full bathroom. The Haystack model offers a practical layout in a stunning package.
Gallery
Some photos show customized options not included in the basic package.

