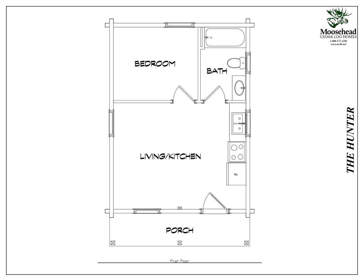
Hunter
The Hunter is just the right size for a guest house, home office, or rental unit. At less than 400 square feet, it’s simple and affordable to build and will come together quickly. Enter directly into the open living room and kitchen from the covered front porch, with the bedroom and full bathroom at the back. Add the Hunter to your property or build your peaceful getaway in the woods.

