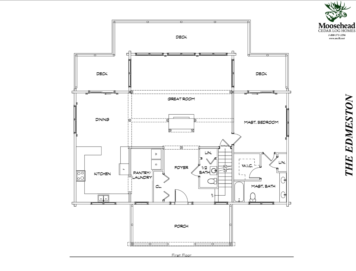
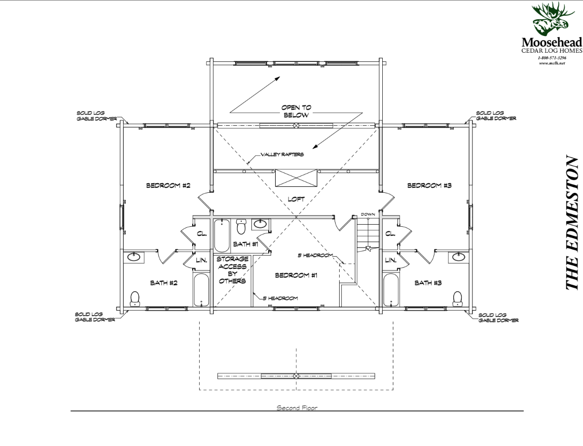
Edmeston
The Edmeston is a stunning log home, thoughtfully designed to handle both your daily routine and a long weekend with guests. The grand front porch welcomes you into the spacious entry, complete with a powder room, large closet, and a glimpse of the wide staircase. Beyond the entry is a great room with a central fireplace leading to a wraparound deck, before turning left to the dining room and kitchen. Once in the kitchen, a discreet archway leads to the cleverly paired pantry and laundry area. The master suite completes the first floor, with a large walk-in closet and private access to the deck. Upstairs is sure to impress- each of the three guest suites includes a full bathroom, making the Edmeston a home that can grow with your family for generations to come.

