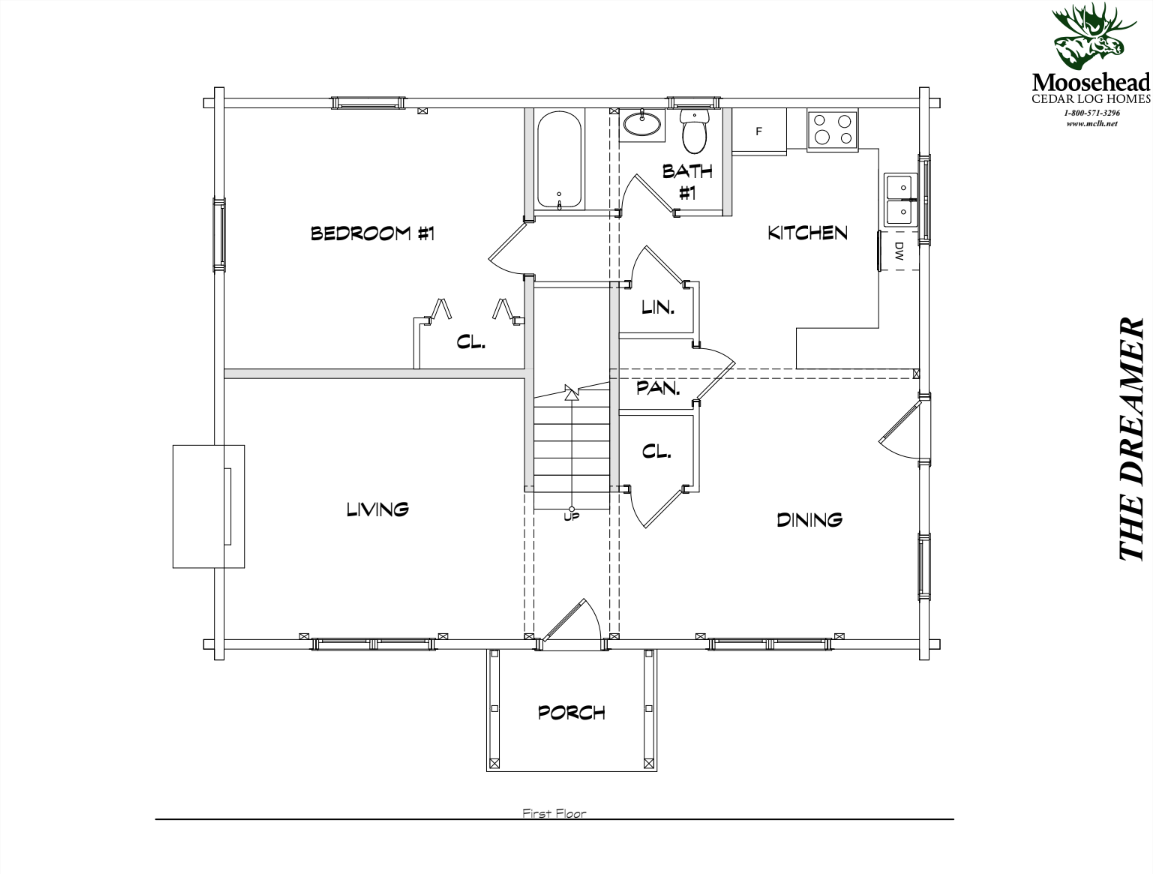
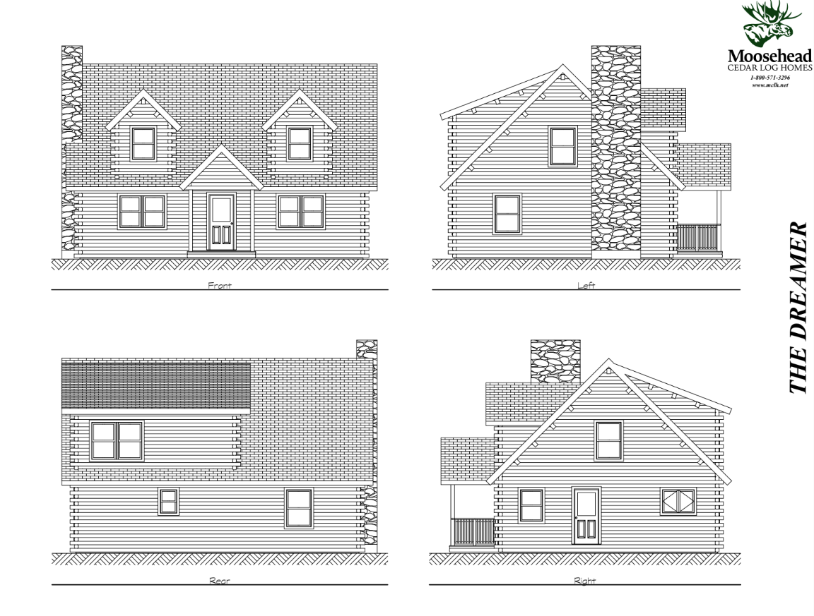
Dreamer
The Dreamer is the perfect blend of practicality and charm. At just under 1700 square feet with three bedrooms, there’s a lot of useable space in this cozy design. Enter from the covered front porch to find a large closet off the dining room and direct access to the central staircase. To the left, the living room opens up with a large front window letting in lots of natural light. Beyond the dining room is the thoughtfully laid out kitchen, complete with a walk-in pantry and easy access to the full bathroom and first floor bedroom. Upstairs houses the master suite and second guest room, both with double closets. The dreamer can store all your favorite things in a perfect little package.

