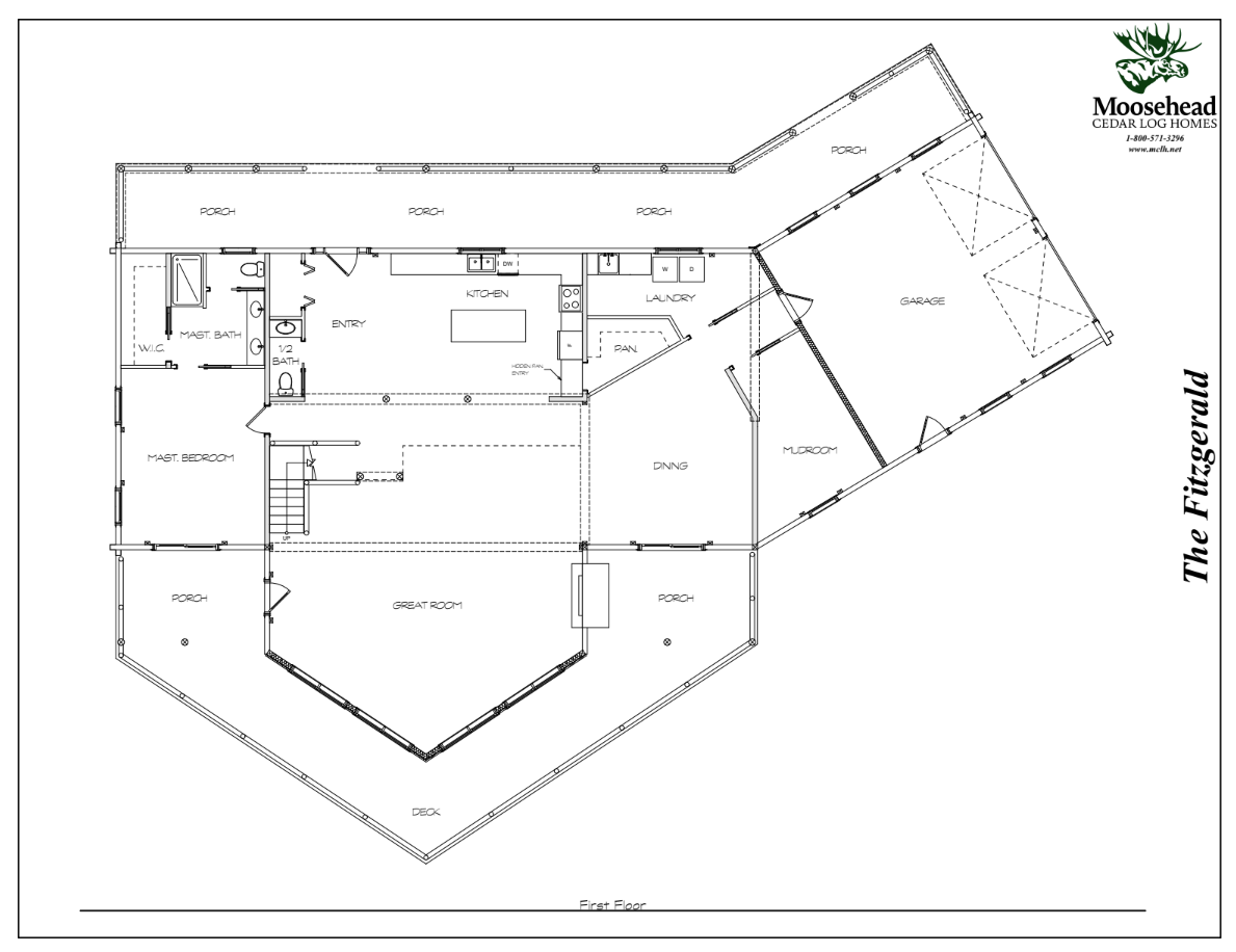
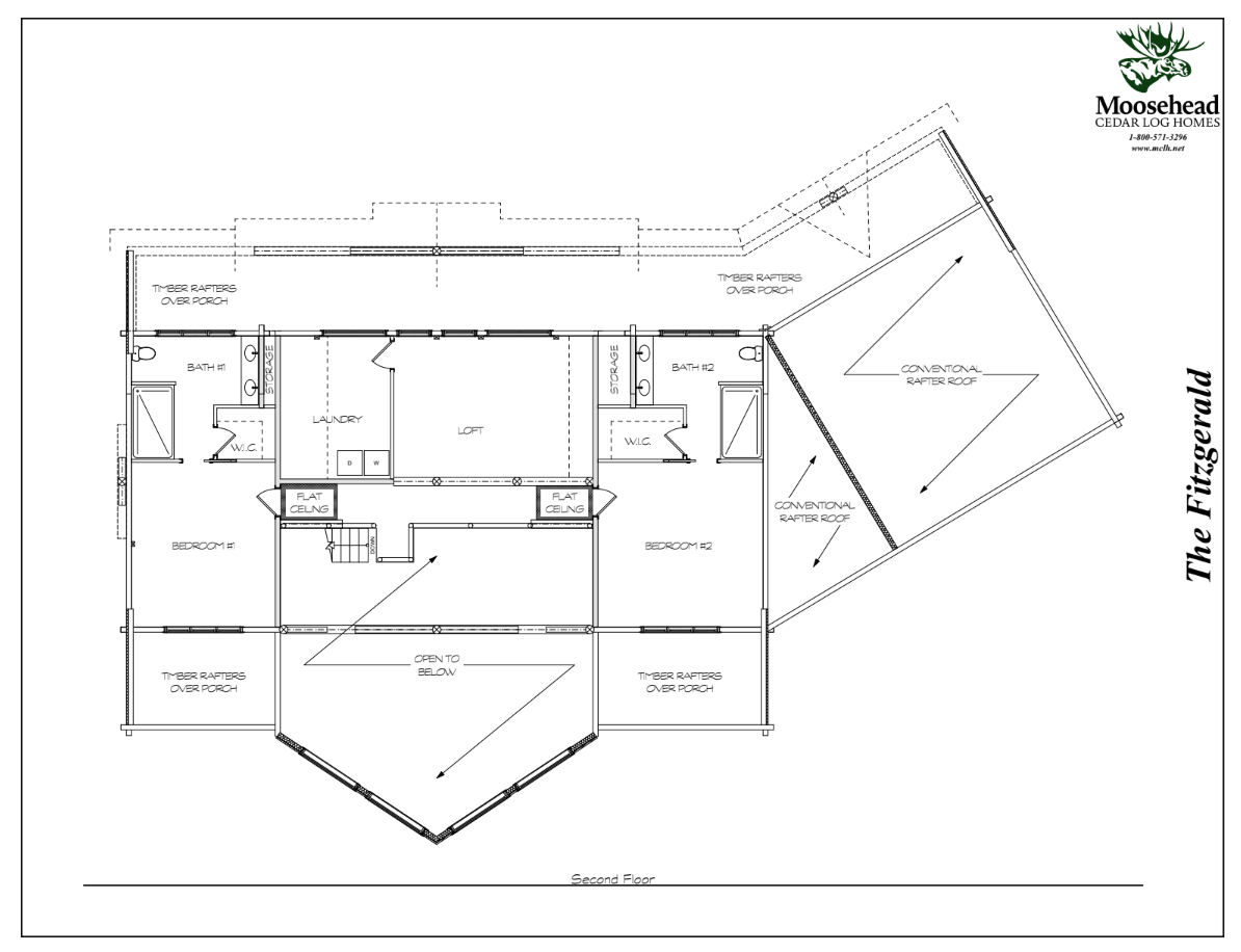
Fitzgerald
With its stylish rooflines, covered decks, and exposed trusses, the Fitzgerald is a dream log home. Inside, the smartly designed layout maximizes practicality for daily life with plenty of space for entertaining. From the attached garage, the mudroom accesses the first of two laundry rooms before opening up to the dining room and great room beyond. The angled walls of the great room allow for a wide expanse of views from floor to ceiling, with access to the covered side porch. On the back of the home, the kitchen opens up to the covered back porch, with the large master suite running the entire side of the first floor. Upstairs leads to a spacious loft and second laundry room, plus two more ensuite bedrooms.

