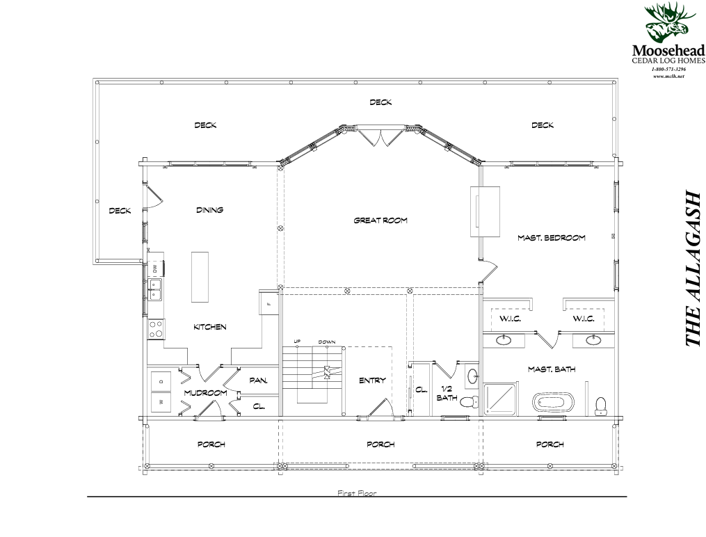
Allagash
The Allagash combines classic log cabin style with a practical layout. The vaulted great room opens to the kitchen and dining area, creating a bright, open living space. A first-floor master bedroom and bath offer main-level convenience, while the loft and upstairs bedrooms with a full bath provide the perfect retreat for guests.

