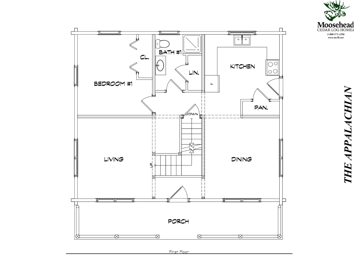
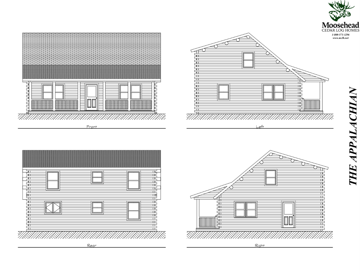
Appalachian
The Appalachian packs a lot of usable space into a compact footprint. The central staircase and stacked first and second floor bathrooms make everything feel close at hand while still spacious. While the cozy front porch gives the feeling of rustic cabin, the hardworking interior is perfectly laid out to suit any busy family.

