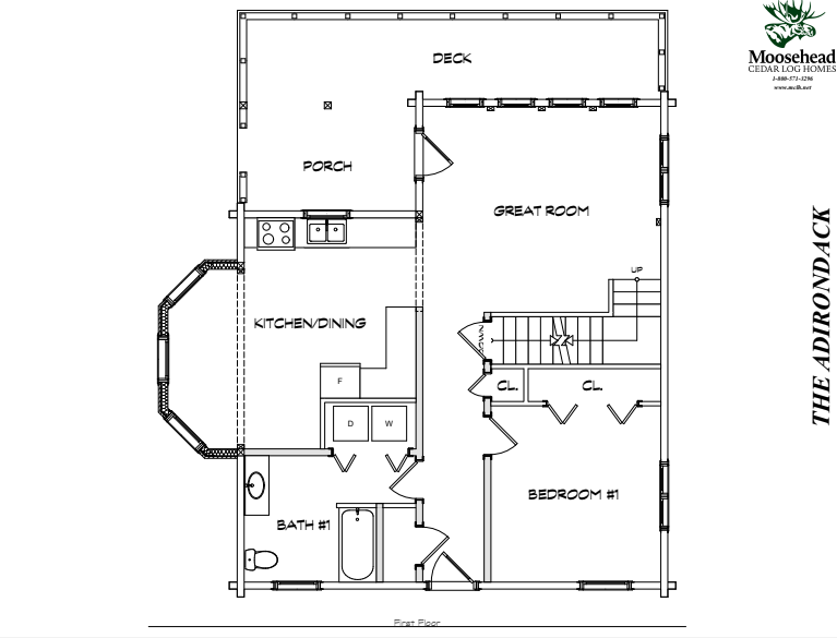
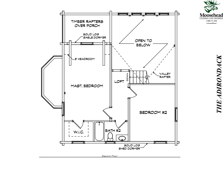
Adirondack
The Adirondack’s beauty is evident both inside and out, with a captivating breakfast nook and grand living room, as well as a covered porch and open deck space that offer a picturesque view from every angle. From the covered side porch entry, the great room opens up to a cathedral ceiling and floor to ceiling windows. The kitchen is to the right, leading to an octagonal breakfast nook with a wide expanse of views. Beyond the staircase is a main floor bedroom and a full bathroom with laundry and plenty of storage. Another exterior entrance down the hallway offers more flexibility. The second floor loft enjoys views of the great room below, and serves as a hallway connecting the master suite and a second bedroom.

