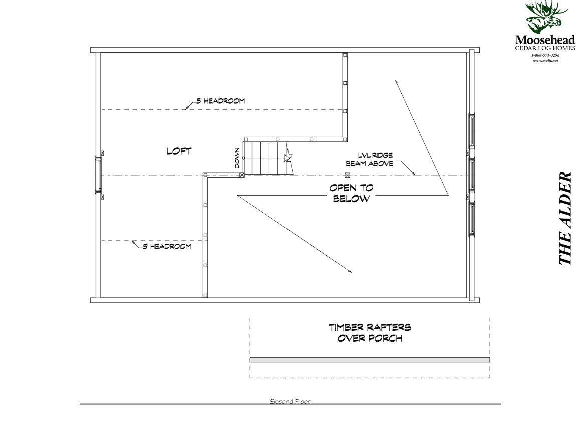
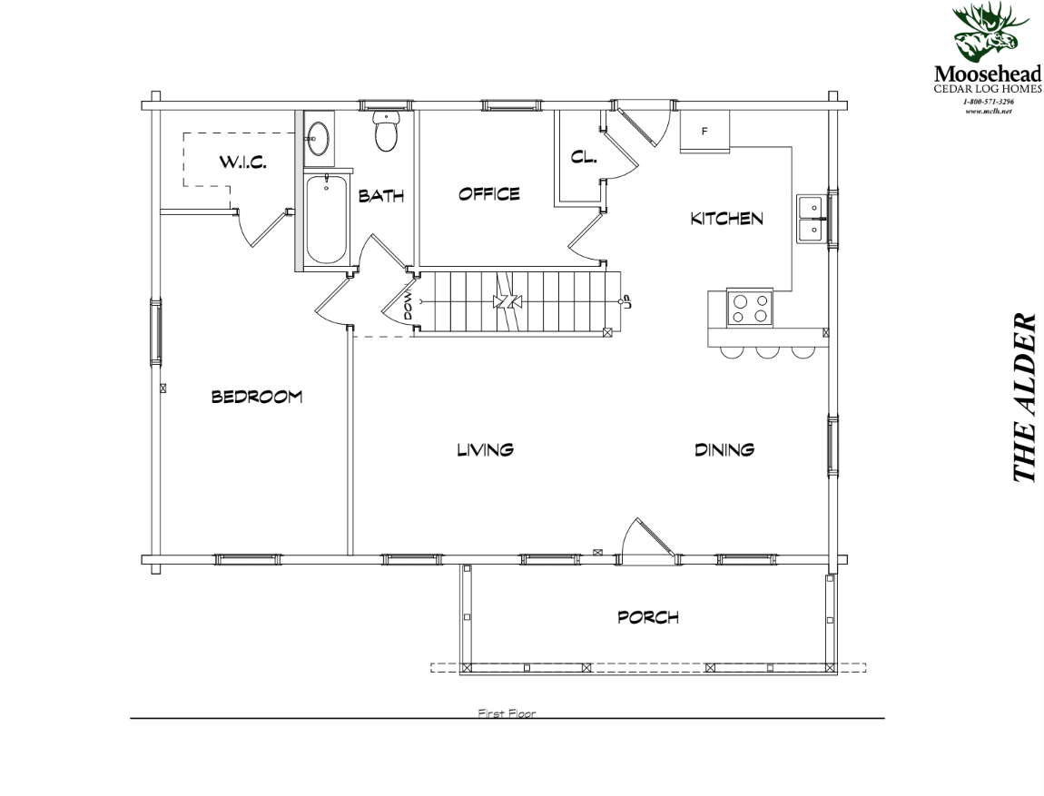
Alder
The Alder follows offers a classic log cabin look, complete with a covered porch and large, open floor plan. With a large walk-in closet in the main bedroom, roomy office off the kitchen, and open loft above, the flexible space makes this the ideal base camp for all your adventures.
The Alder typically costs between $100,000 - $150,000. Each project is unique, please contact us for a detailed quote.

