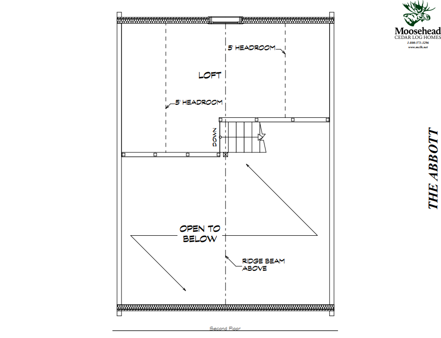
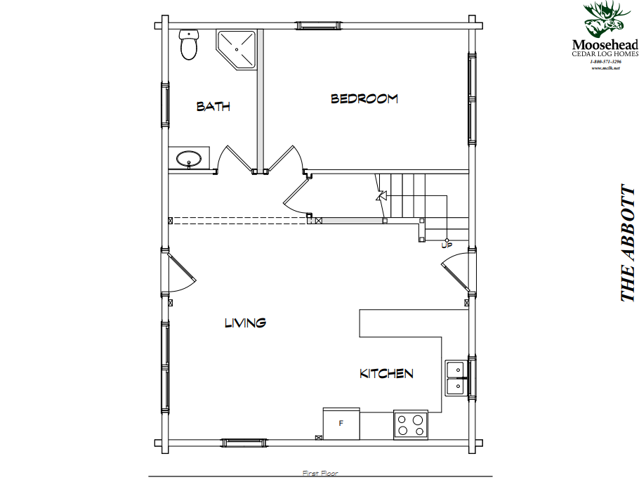
Abbot
A simple log cabin design offers more than just understated style. The Abbot’s sturdy, square(ish) shape makes it affordable to build and efficient to maintain. Enter through the side door, with stairs to the loft on the right and a full kitchen to the left. The U-shaped kitchen has ample counter space and a smart layout, complete with a window above the sink. The main living space is straight ahead, with a second exterior door lined up for easy air flow on warm days. The bedroom is on the right, with three windows offering wide views and plenty of natural light. A generous storage closed is tucked under the stairs, and the bathroom is smartly positioned along the back wall. The loft offers flexible space for guests, hobbies, or storage.

