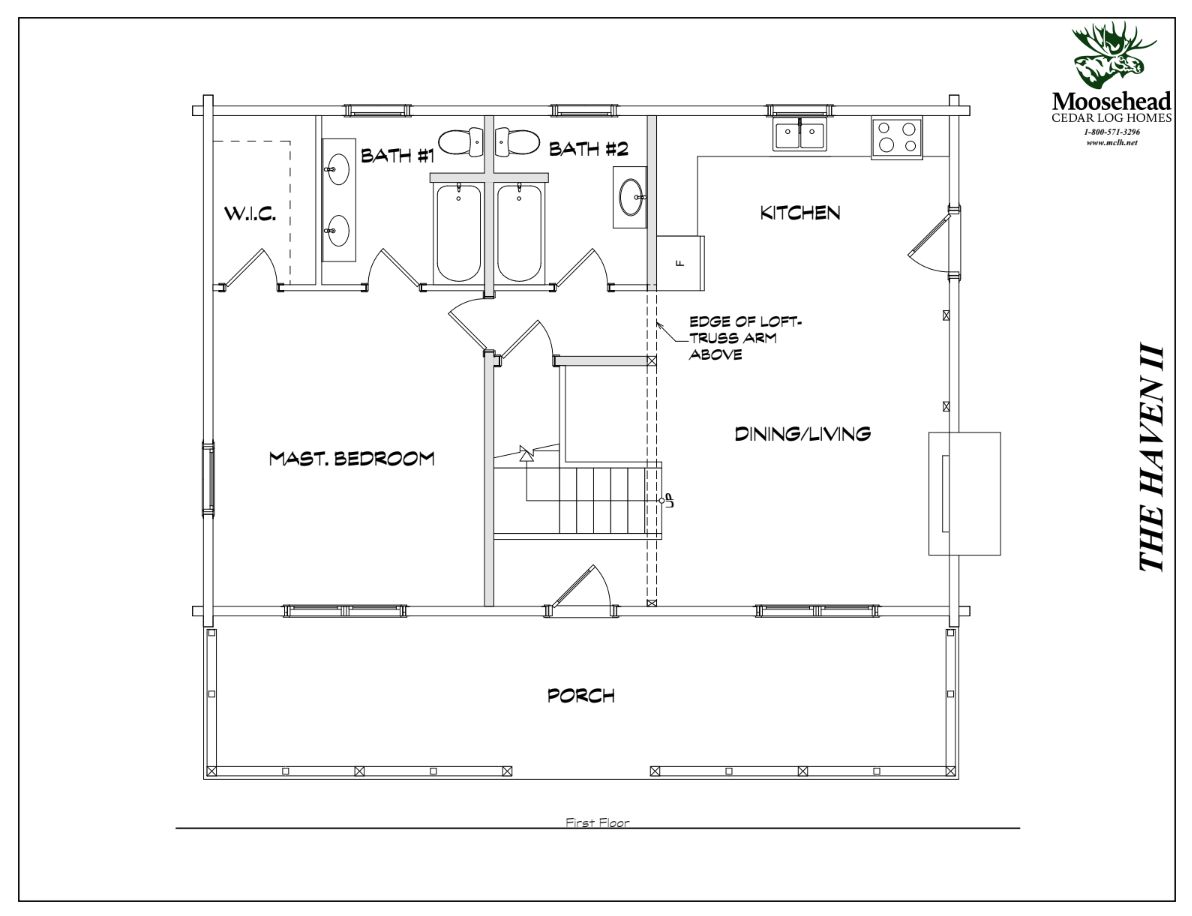
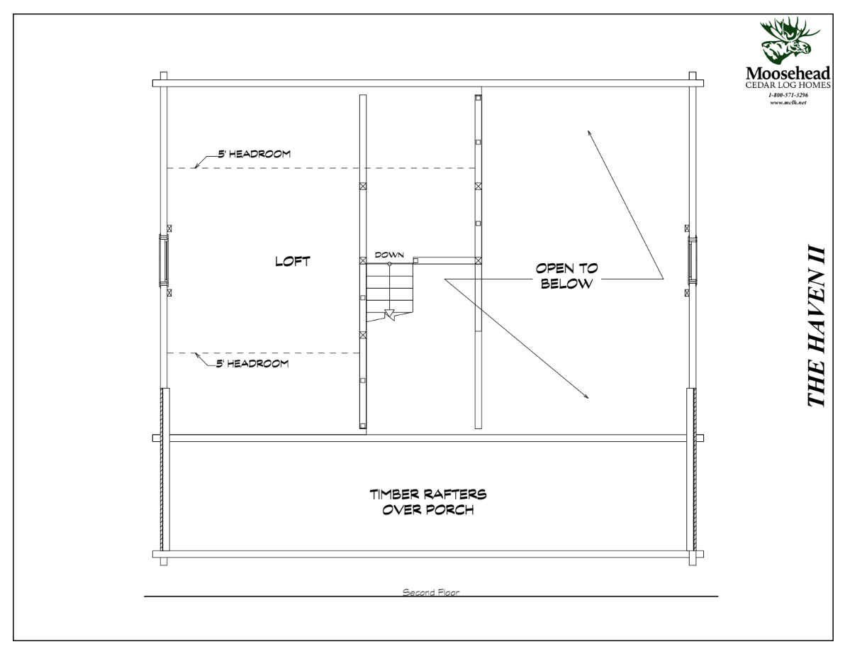
Haven II
With its clean design and classic log cabin style, the Haven II retains all the simple charm of the original Haven with a little more room to spare. From the covered porch spanning the front side, step in to the dedicated entryway and on to the open concept living room and kitchen, all vaulted to the ceiling. Past the kitchen is a full guest bathroom and master suite, complete with a full bath of its own and a walk-in closet. The spacious second floor loft is ready for more guests, more storage, or both. Enjoy the simple life with plenty of room to relax in the Haven II.
1 Bedrooms
2 Bathrooms
1292 Sq Ft
Covered Front Porch Entry
Floor Plan
Make it Your Own
Tailoring each log home package to our clients is a service we’re proud to offer. We provide the flexibility to create a custom package, allowing you to swap in (or out) any materials you prefer. Perhaps you’d like a metal roof rather than the standard shingle roof included in our package. Or maybe you’d like to include cedar shakes on your dormers and a stone skirting around your foundation. While these factors depend on building location, and may be provided by other manufacturers, ensuring you get exactly what you want — and nothing you don’t — is our top priority.
Haven II Gallery
Note: Some models pictured feature custom upgrades, not included in the basic package.

