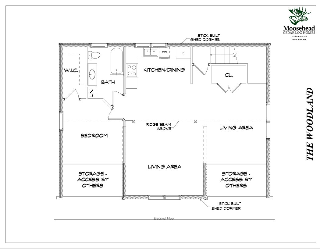
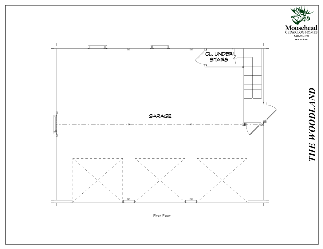
Woodland Garage
The Woodland is built for flexibility and function. The ground level features a spacious three-bay garage, perfect for vehicles, gear, or workshop space, with plenty of room to spare. Upstairs, the open-concept living area welcomes you with natural light from shed dormers and a rafter-style roof that adds rustic character. The kitchen and dining space flow into a cozy sitting area, ideal for relaxing after a day outdoors. A full bath and private bedroom complete the upper level, making it perfect for guests, rental income, or a quiet retreat above the garage. Whether you're lakeside, mountainside, or tucked into the woods, The Woodland fits right in.

