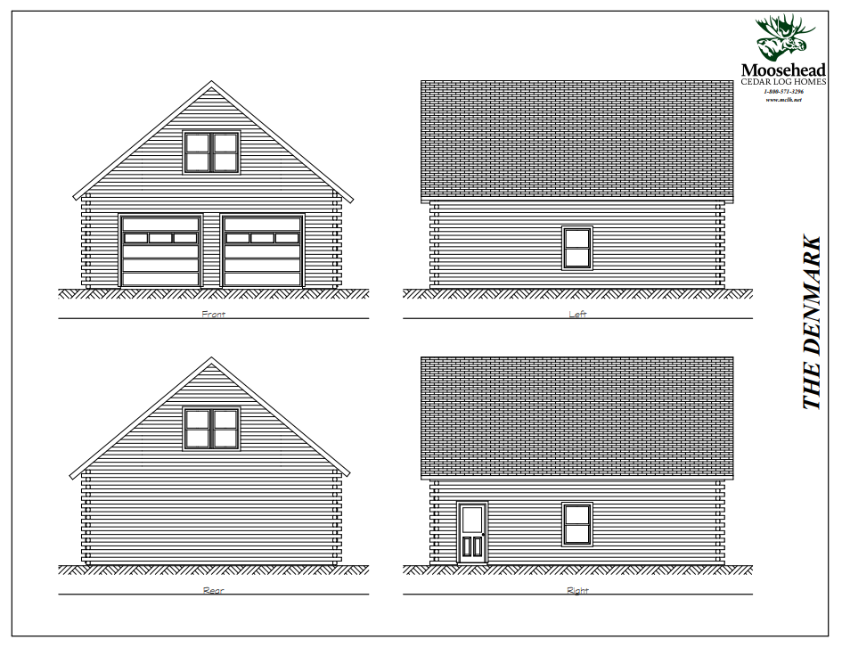
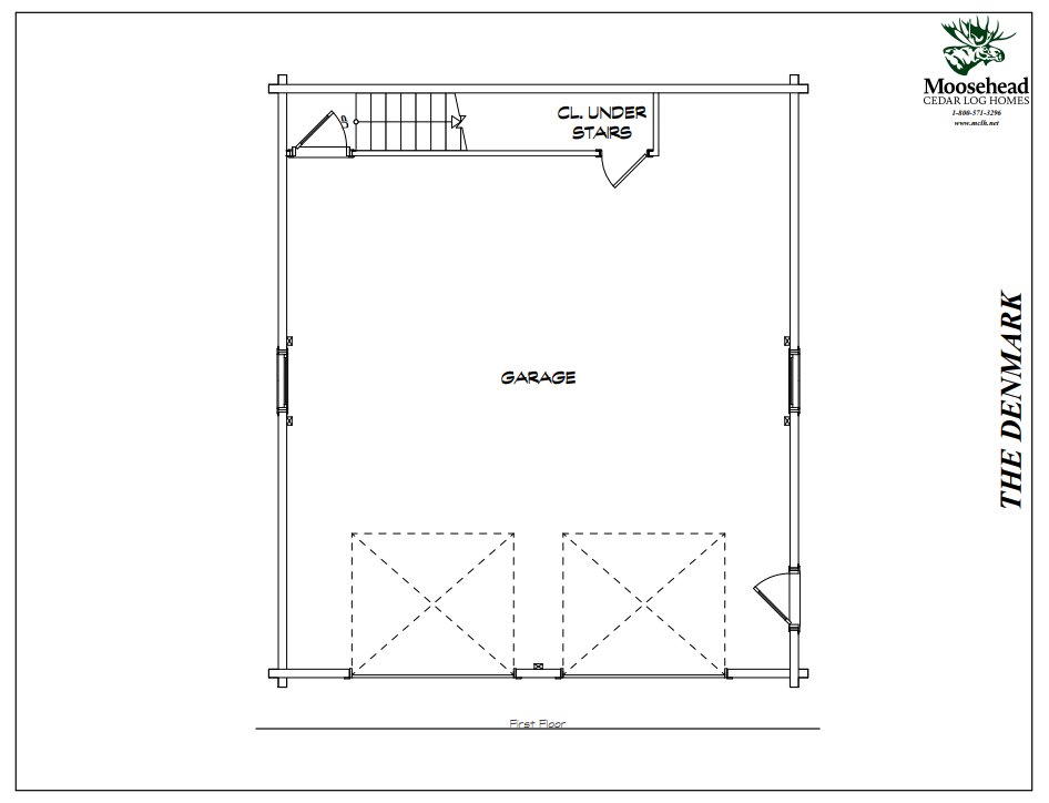
Denmark Garage
Designed for more than parking, The Denmark is a 28' x 32' cedar log garage that doubles as a workshop, gear hub, or guest-ready outbuilding. With 1,397 square feet of space, it features double bay doors for easy access, and a second floor suite complete with a full bathroom. The interior staircase feature a large closet below to maximize utility, while Moosehead’s signature log craftsmanship ensures it stands strong through Maine winters and beyond. The Denmark delivers rustic charm with modern practicality, making it the perfect flexible space for your property.

