Stonington
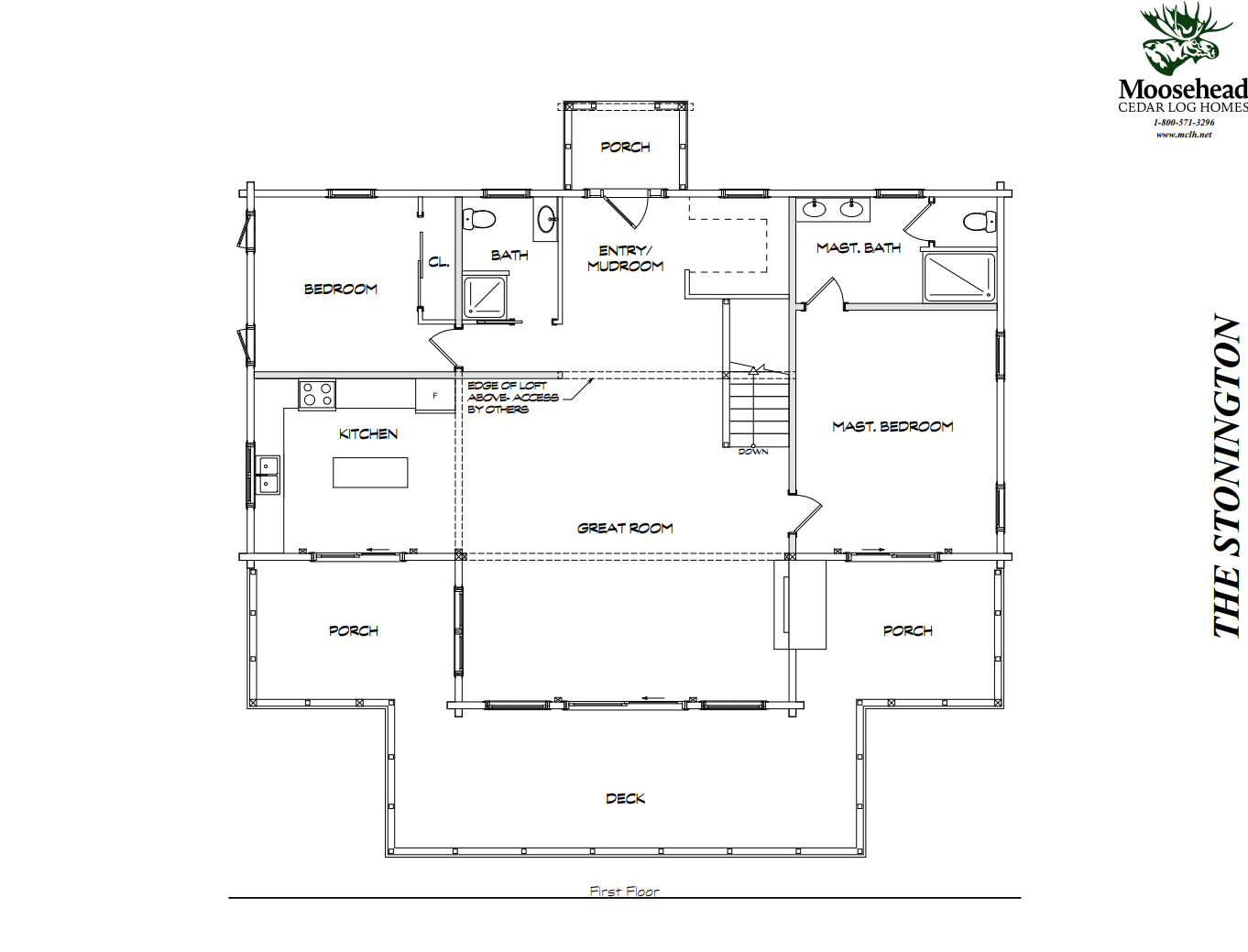
The soaring great room and floor to ceiling windows of the Stonington make it feel much larger than its square footage suggests, and the layout is designed with practicality in mind. The main entrance at the back of the home accesses a large mudroom with ample storage, and opens up to the vaulted great room with views to the front deck. The guest bathroom is conveniently located off the entrance, with the guest bedroom just beyond. To the right is the L-shaped kitchen with access to the covered front porch for easy outdoor dining. The master suite spans the entire left side of the home, with sliding doors to the front porch and a full bathroom. The second floor loft looks out over the great room and adds flexibility for storage, a reading nook, or a small office. Get the open feeling of a much larger home in an efficient package with the Stonington.

