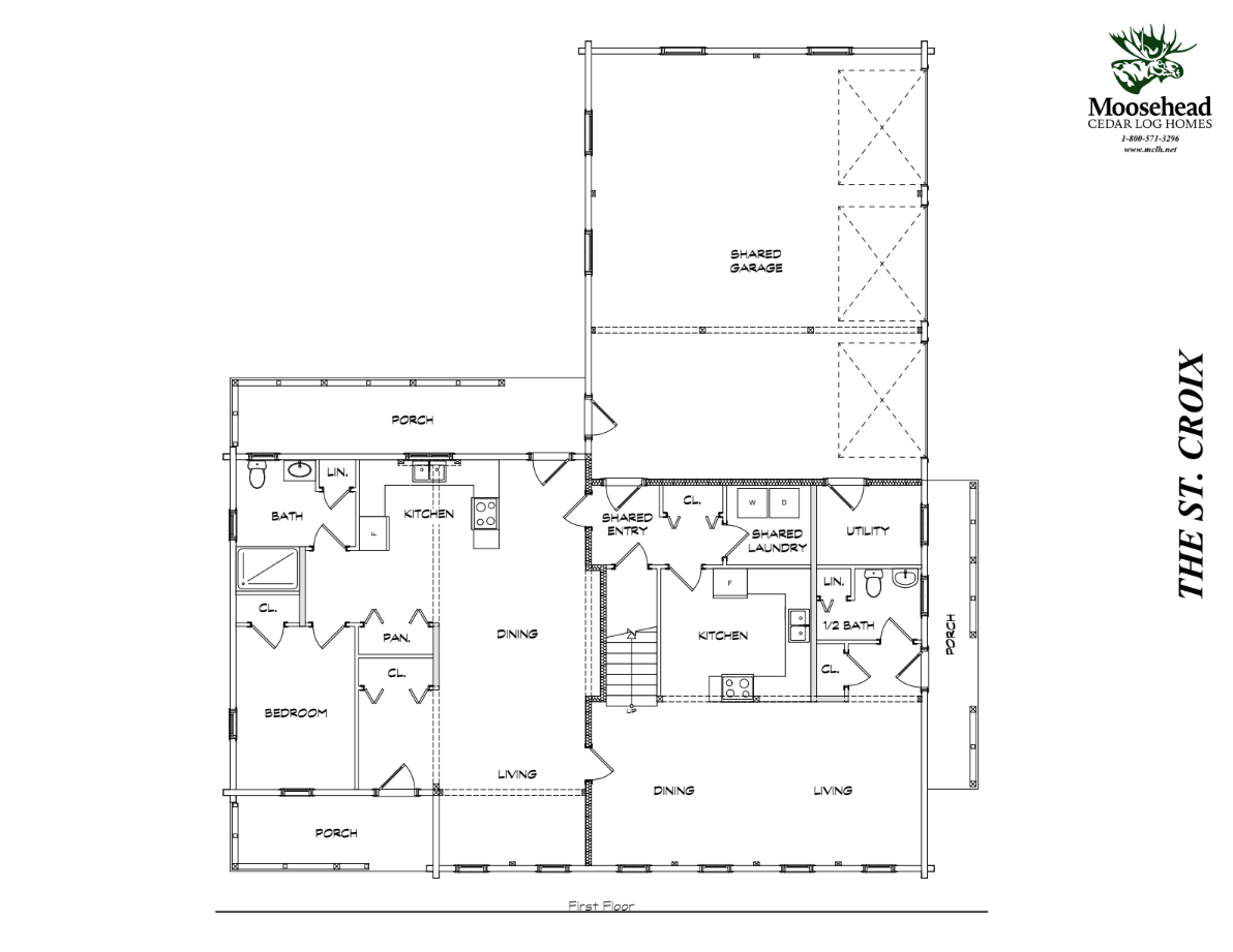
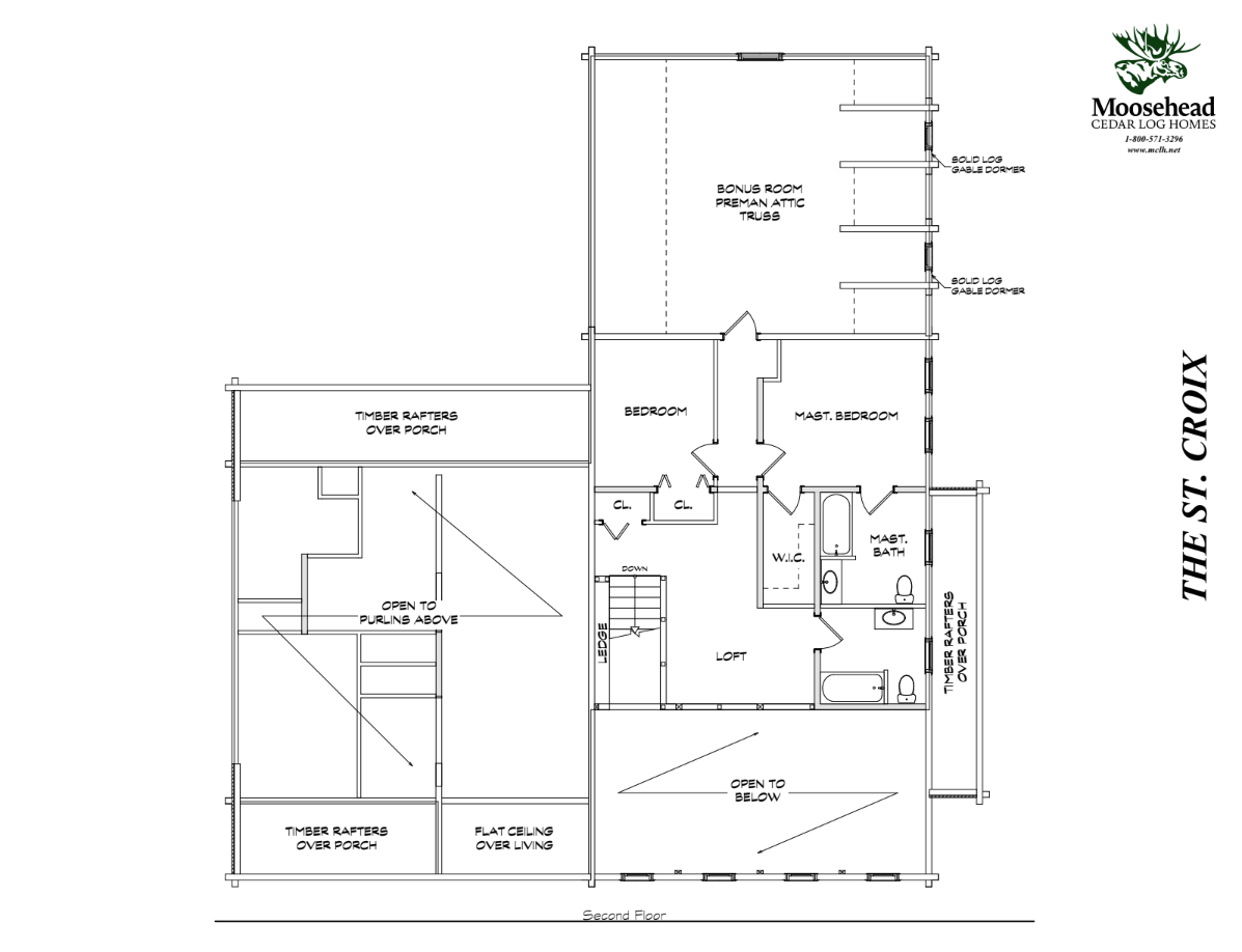
St. Croix
The St. Croix is designed to be a multi-family home, but could be customized for a single family with a few changes. The smaller section features a cozy covered front porch entry, with a large foyer opening to a vaulted living room, kitchen, and dining room. From the dining room, there’s access to the shared three car garage, utility room, and laundry, as well as access to the private covered back porch. The bedroom and full bathroom is just beyond the kitchen. The larger section can be accessed by either the shared garage and entry, or the private covered side porch. The U-shaped kitchen opens up to a vaulted living and dining room as well as a powder room and closet off the side porch entry. Continue upstairs to access the bonus room above the garage, guest bedroom, full bathroom, and master suite with its own full bathroom and walk-in closet. The second floor loft looks down over the living and dining room below. The two living spaces are connected by the shared entrance near the garage and at a door separating the living rooms. There’s room for everyone with the St. Croix!

