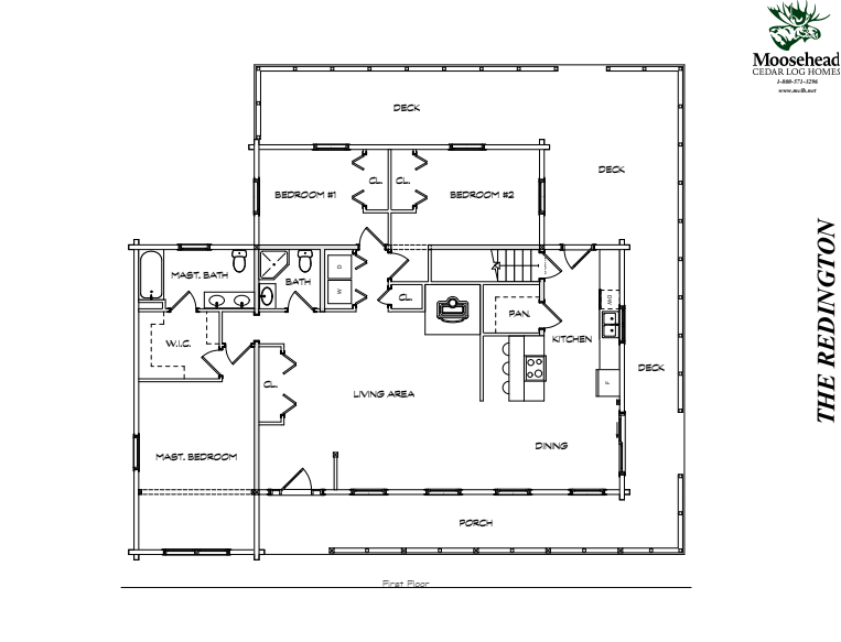
Redington
The Redington is beautiful inside and out, with a smart design that offers privacy, practicality, and plenty of outdoor space. The wraparound deck spans three full sides of the home with two entrances. From the front, step into the dedicated entry with ample storage to the spacious living room. Through the dining room is the kitchen with a large pantry and access to the deck. Two bedrooms, a bathroom, and laundry closet are situated behind the living room, with both bedrooms looking out over the back deck. The master suite commands the entire left wing of the home, and features a full bathroom and large walk-in closet. Start planning your version of the Redington!

