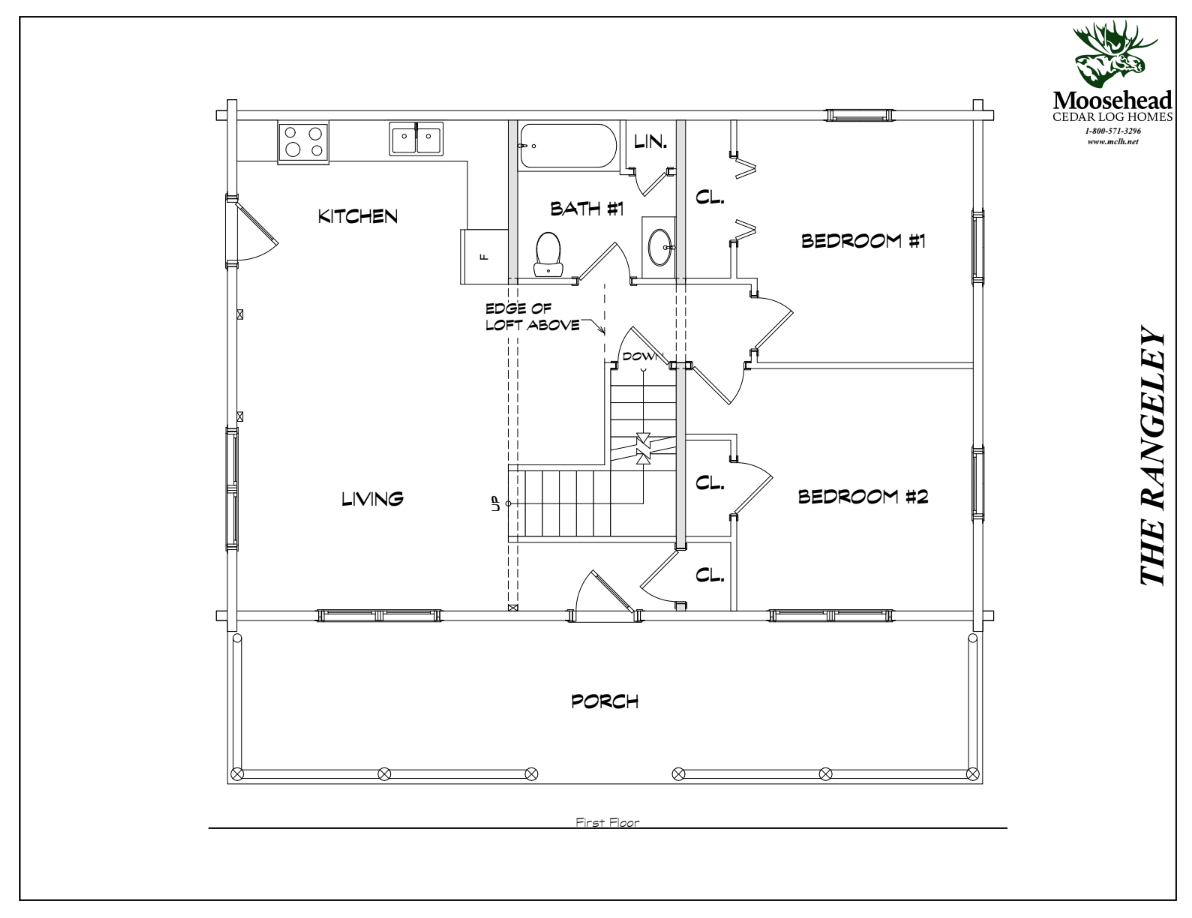
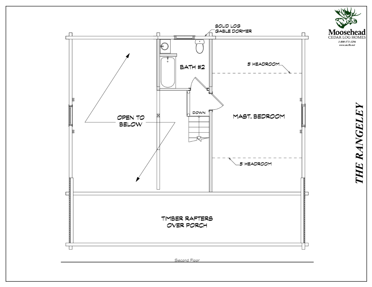
Rangeley
The compact design of the Rangeley makes great use of space, and offers efficiency without sacrificing style. The large covered front porch welcomes you into a dedicated entry, then opens up to a vaulted living room and kitchen. Additional outdoor access from the kitchen would make it easy to add a patio or screened in porch. A full bathroom and two bedrooms complete the main floor. Upstairs is a lofted third bedroom, plus another full bathroom with a large dormered window to let in plenty of natural light.
Gallery
Some photos show customized options not included in the basic package.

