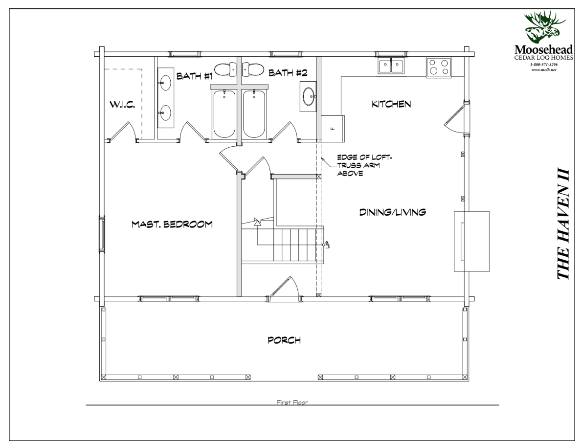
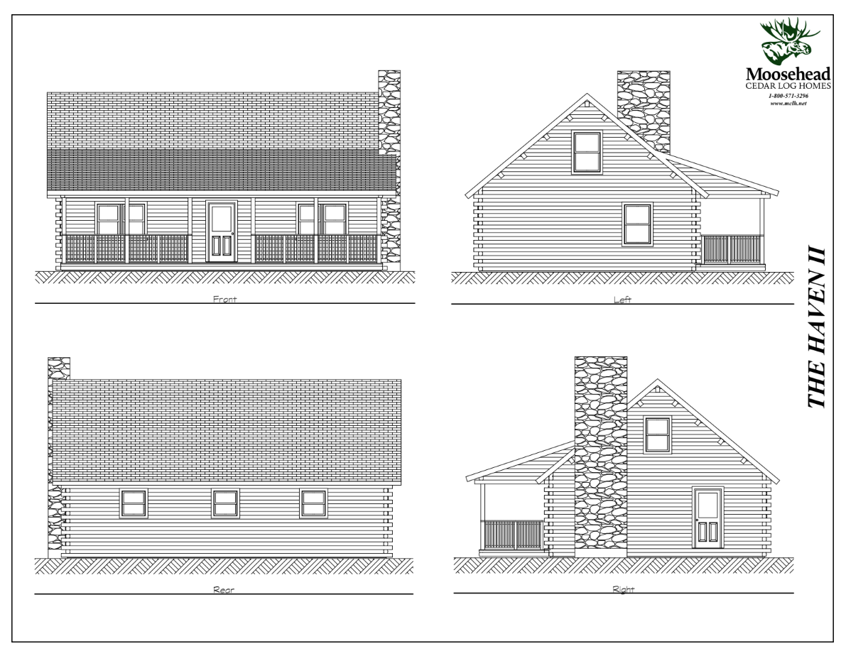
Haven II
With its clean design and classic log cabin style, the Haven II retains all the simple charm of the original Haven with a little more room to spare. From the covered porch spanning the front side, step in to the dedicated entryway and on to the open concept living room and kitchen, all vaulted to the ceiling. Past the kitchen is a full guest bathroom and master suite, complete with a full bath of its own and a walk-in closet. The spacious second floor loft is ready for more guests, more storage, or both. Enjoy the simple life with plenty of room to relax in the Haven II.

