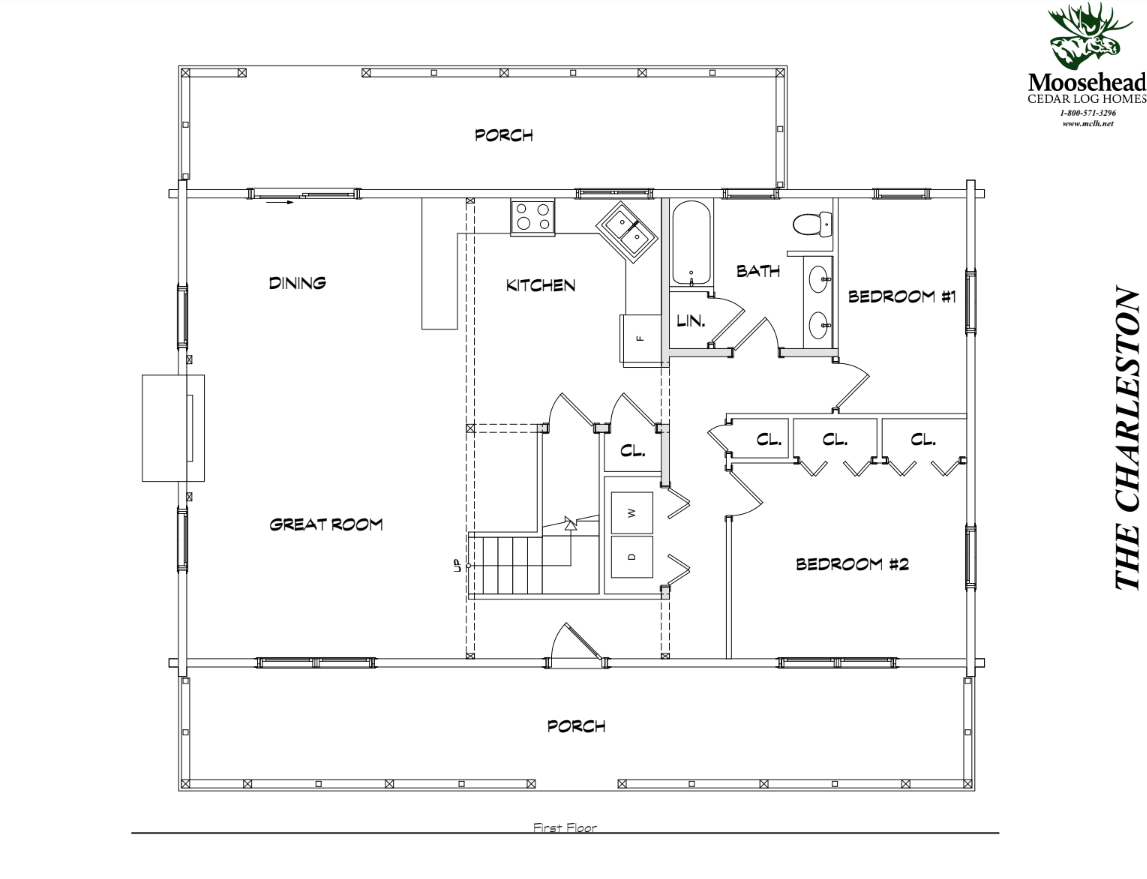
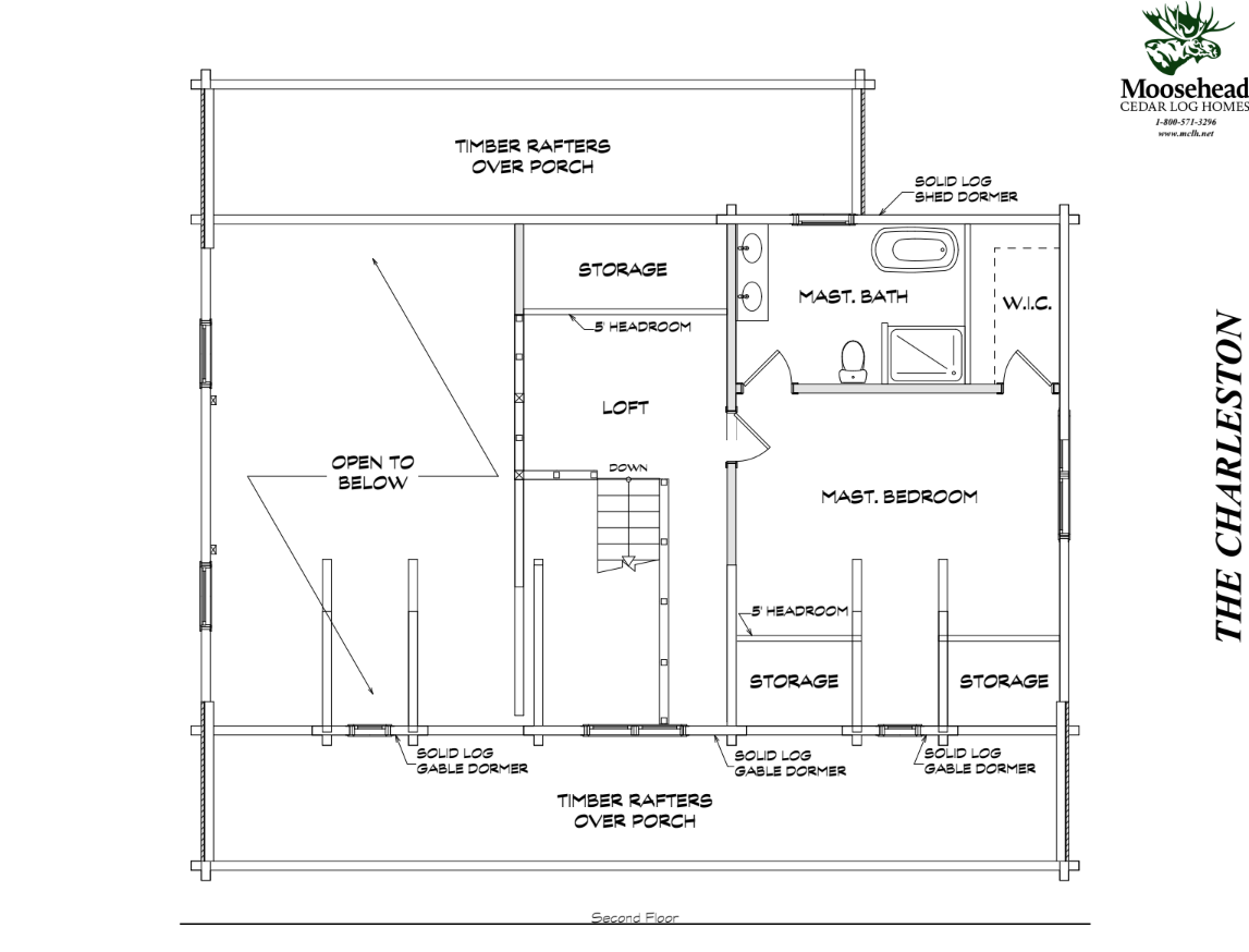
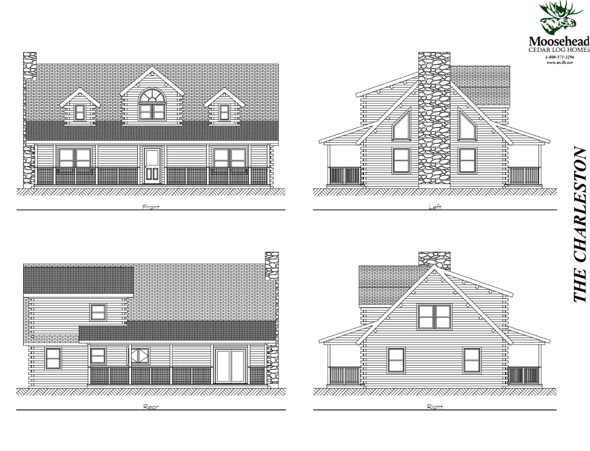
Charleston
The Charleston feels much larger than its square footage would suggest. The thoughtfully designed layout makes great use of space, and with front and back covered porches, there’s more than enough room to spread out. The vaulted great room and dining room open to the kitchen overlooking the back porch, an ideal layout for entertaining. Two first floor bedrooms share a full bathroom and laundry closet, and with one of the bedrooms opening to the front porch, it could double as a study. The second floor master suite has a large loft with a storage closet, full bath, dressing area with sink, and a large walk-in closet. The Charleston offers easy living in a charming package.
Gallery
Some photos show customized options not included in the basic package.

