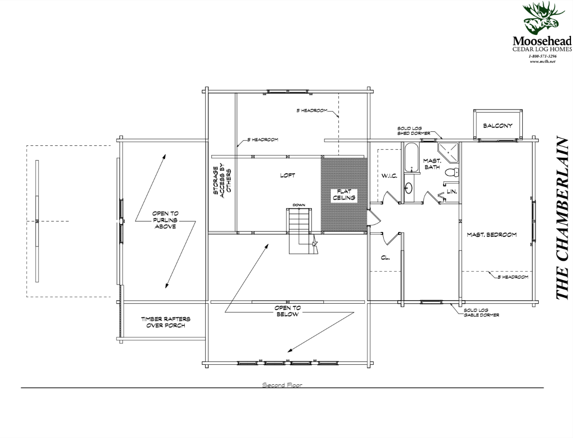
Chamberlain
At almost 3,000 square feet, the chalet-inspired design of the Chamberlain offers space, storage, and style. From the covered front porch or the charming carport, you’re greeted by a vaulted, open-concept kitchen, dining, and living room. Enter from the mudroom off the attached two car garage for easy access to the L-shaped staircase. Beyond the stairs, you’ll find a powder room, laundry closet, full bath, two bedrooms, and an office- all with lots of storage. The second floor is dedicated to the expansive master suite, complete with two walk-in closets, large loft space, and a private second floor balcony. Life feels grand in the Chamberlain!

