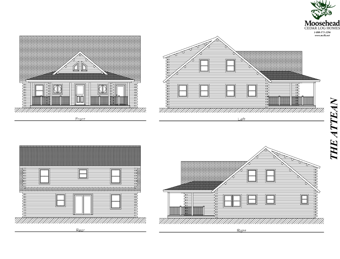
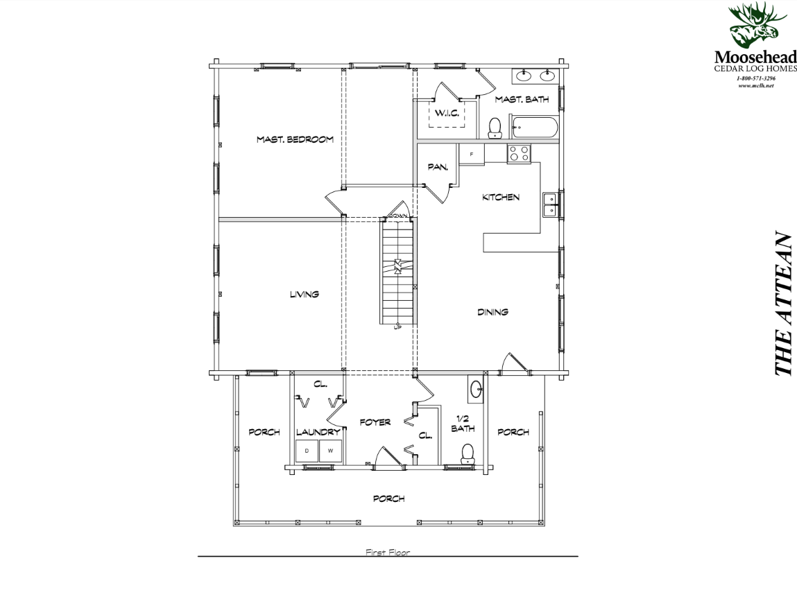
Attean
The Attean has it all. The spacious entry is flanked by a laundry room and bathroom, and opens up to a beautiful vaulted staircase flooded with natural light from the second floor windows. Off the living room, the large, first floor primary suite includes a full bathroom with walk-in closet. The first floor is rounded out by a large kitchen with plenty of storage, and a sunny dining room with access to the covered front porch. The second floor is home to two more bedrooms with generous closets, a full bath, and a loft- the options are endless

