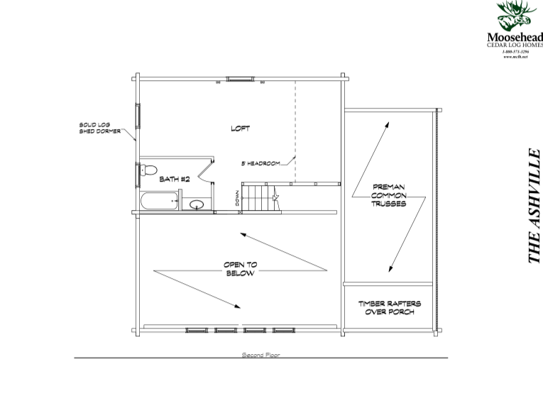
Ashville
The Ashville is just the right size- big enough to entertain a crowd, but still feels cozy when things quiet down. The large living room opens up to an expansive deck on one side and dining room on the other. The two bedrooms, full bathroom, and kitchen round out the main floor, while the spacious loft with its full bathroom is ideal for a primary suite.

