Abbot
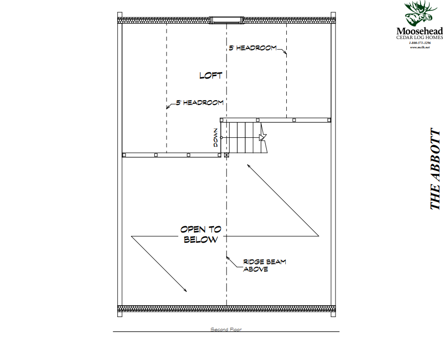
A simple log cabin design offers more than just understated style. The Abbot’s sturdy, square(ish) shape makes it affordable to build and efficient to maintain. Enter through the side door, with stairs to the loft on the right and a full kitchen to the left. The U-shaped kitchen has ample counter space and a smart layout, complete with a window above the sink. The main living space is straight ahead, with a second exterior door lined up for easy air flow on warm days. The bedroom is on the right, with three windows offering wide views and plenty of natural light. A generous storage closed is tucked under the stairs, and the bathroom is smartly positioned along the back wall. The loft offers flexible space for guests, hobbies, or storage.
1 Bedroom
1 Bathroom
932 Sq Ft
Simple and Stylish
Floor Plan
Make it Your Own
Tailoring each log home package to our clients is a service we’re proud to offer. We provide the flexibility to create a custom package, allowing you to swap in (or out) any materials you prefer. Perhaps you’d like a metal roof rather than the standard shingle roof included in our package. Or maybe you’d like to include cedar shakes on your dormers and a stone skirting around your foundation. While these factors depend on building location, and may be provided by other manufacturers, ensuring you get exactly what you want — and nothing you don’t — is our top priority.

