Sebago
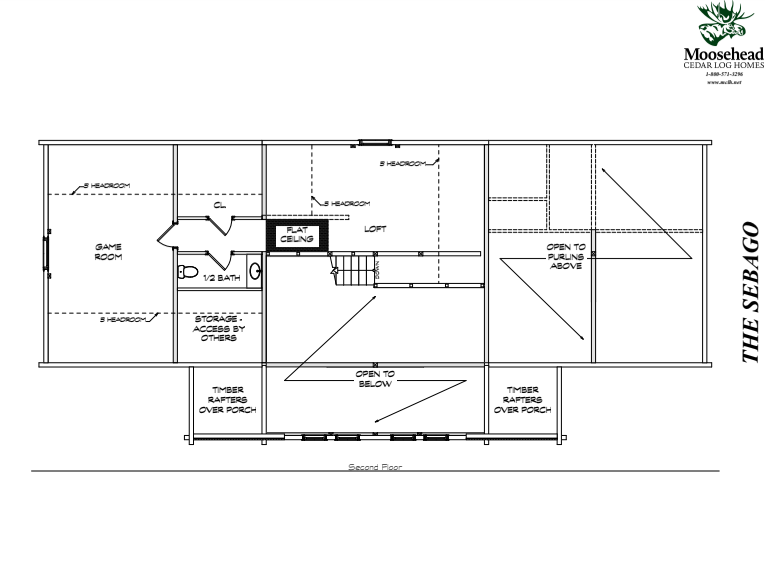
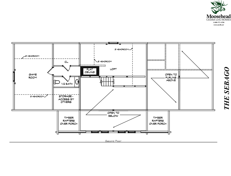
The Sebago has something for everyone. The first floor is all about practicality as you enter the foyer with a large closet and powder room, with two bedrooms and a full bathroom conveniently situated in their own wing beyond the entrance. The kitchen and dining room open up to the central great room overlooking the wraparound front deck, with sliding glass doors from the dining room- all ready for a patio! The master suite commands the entire third wing of the main floor, with private porch access, laundry room, and full bath with a large walk-in closet. Upstairs features a game room, powder room, and large storage closet, as well as a loft overlooking the great room. Unwind with the whole family in the Sebago.
3 Bedrooms
2.5 Bathrooms
2836 Sq Ft
Game Room
Floor Plan
Make it Your Own
Tailoring each log home package to our clients is a service we’re proud to offer. We provide the flexibility to create a custom package, allowing you to swap in (or out) any materials you prefer. Perhaps you’d like a metal roof rather than the standard shingle roof included in our package. Or maybe you’d like to include cedar shakes on your dormers and a stone skirting around your foundation. While these factors depend on building location, and may be provided by other manufacturers, ensuring you get exactly what you want — and nothing you don’t — is our top priority.

