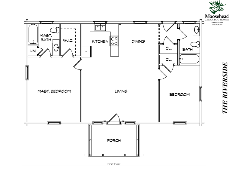
Riverside
The charming Riverside model would be great for a small family, or as a bunkhouse or in-law apartment. With a well-sized great room encompassing the dining room and kitchen in the center, the two main bedrooms have plenty of privacy. The master suite has a large walk-in closet with a full bath, and the second bedroom is just around the corner from the second full bathroom. The back entrance off the kitchen makes for easy access to a patio or attach a garage!
2 Bedrooms
2 Bathrooms
1011 Sq Ft
Large Master Suite
Floor Plan
Make it Your Own
Tailoring each log home package to our clients is a service we’re proud to offer. We provide the flexibility to create a custom package, allowing you to swap in (or out) any materials you prefer. Perhaps you’d like a metal roof rather than the standard shingle roof included in our package. Or maybe you’d like to include cedar shakes on your dormers and a stone skirting around your foundation. While these factors depend on building location, and may be provided by other manufacturers, ensuring you get exactly what you want — and nothing you don’t — is our top priority.

