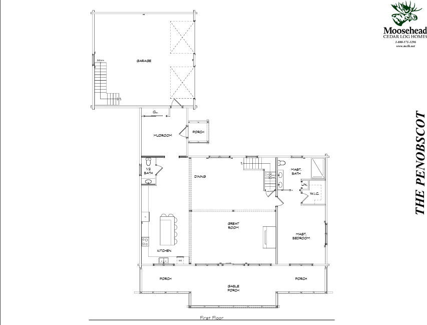
Penobscot
The Penobscot combines impressive design with everyday comfort. The vaulted great room flows into the kitchen and dining area, opening to covered porches for easy indoor-outdoor living. The first-floor master suite includes a walk-in closet and private bath, while upstairs offers two bedrooms, a loft, and a bonus room for added space and flexibility. The Penobscot is designed to flow efficiently with your daily routine, with plenty of space to host the whole crew.
3 Bedrooms
2.5 Bathrooms
3170 Sq Ft
Bonus Room
Floor Plan
Make it Your Own
Tailoring each log home package to our clients is a service we’re proud to offer. We provide the flexibility to create a custom package, allowing you to swap in (or out) any materials you prefer. Perhaps you’d like a metal roof rather than the standard shingle roof included in our package. Or maybe you’d like to include cedar shakes on your dormers and a stone skirting around your foundation. While these factors depend on building location, and may be provided by other manufacturers, ensuring you get exactly what you want — and nothing you don’t — is our top priority.

