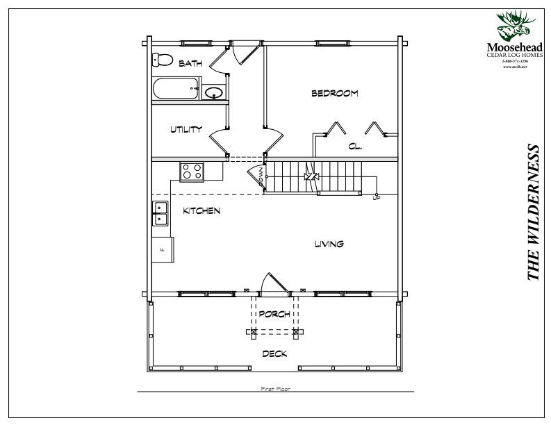
Wilderness
The steep roofline and welcoming front porch give the Wilderness a storybook feeling, making it the perfect rustic getaway. The vaulted living room and kitchen open up to the bedroom, full bathroom, and utility room. A convenient back door gives direct access to the hallway and lets in natural light. The spacious loft adds more flexibility for guest space and storage. Consider the Wilderness for a guest house, in-law apartment, or rental!

