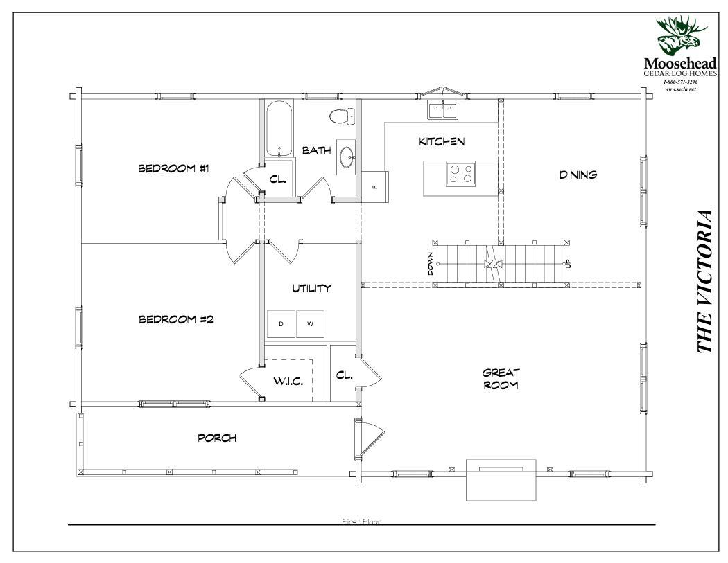
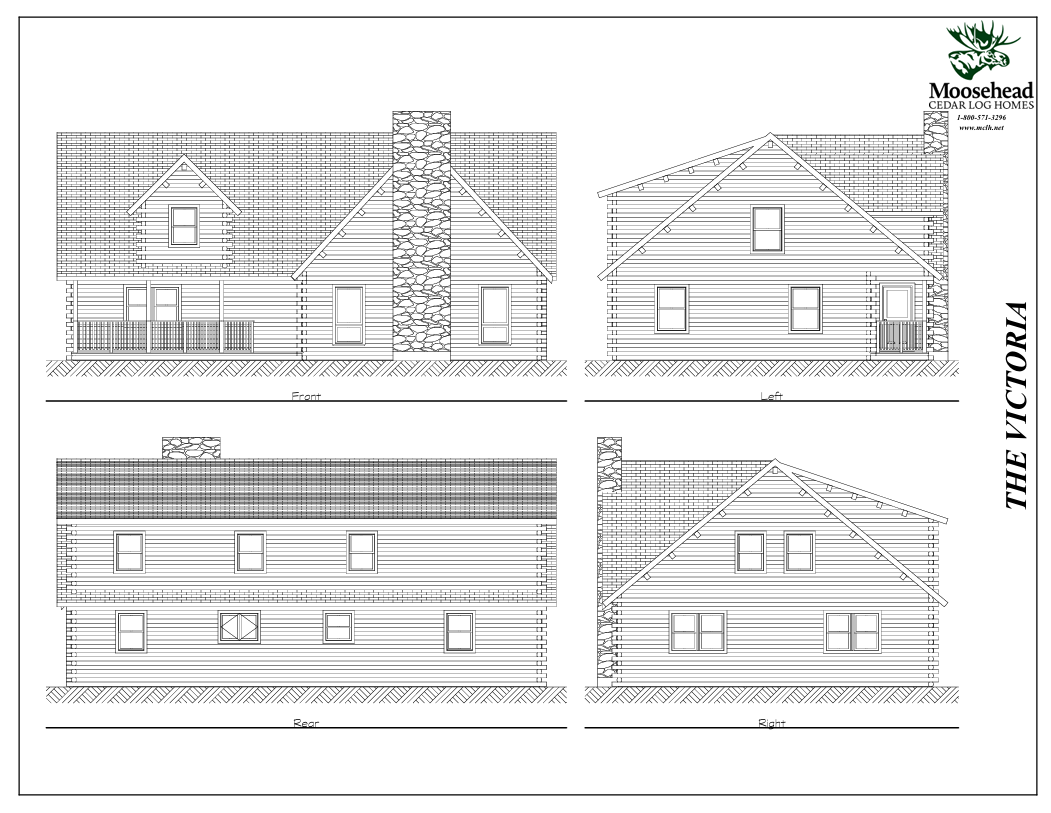
Victoria
The covered porches and well-placed dormers of the Victoria make an inviting first impression, but the thoughtfully designed layout is what really makes this house a home. The classic covered front porch entrance leads to the vaulted great room, with the kitchen and dining room just beyond the central staircase. From the kitchen, the laundry room, full bath, and both downstairs bedrooms are just steps away making household chores a breeze. Upstairs, the spacious master suite includes a bathroom with linen closet and large walk-in closet measuring over 80 square feet. The adjacent loft looks out over the great room below. Life is easy in the Victoria!

