Six Rivers
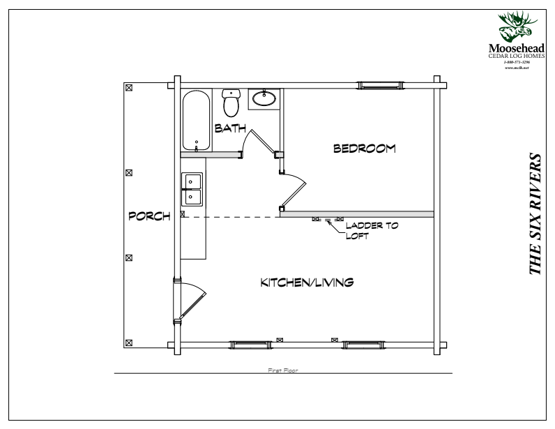
Six Rivers is a simple log cabin that’s easy to build, easy to afford, and easy to maintain. Its classic covered front porch entry and vaulted main living space give it that log cabin charm, and the full bathroom and open kitchen make it convenient for daily use. The ladder-accessed loft is great for storage or extra guest space. Consider the Six Rivers for a camp, bunkhouse, in-law apartment, or cozy getaway.

