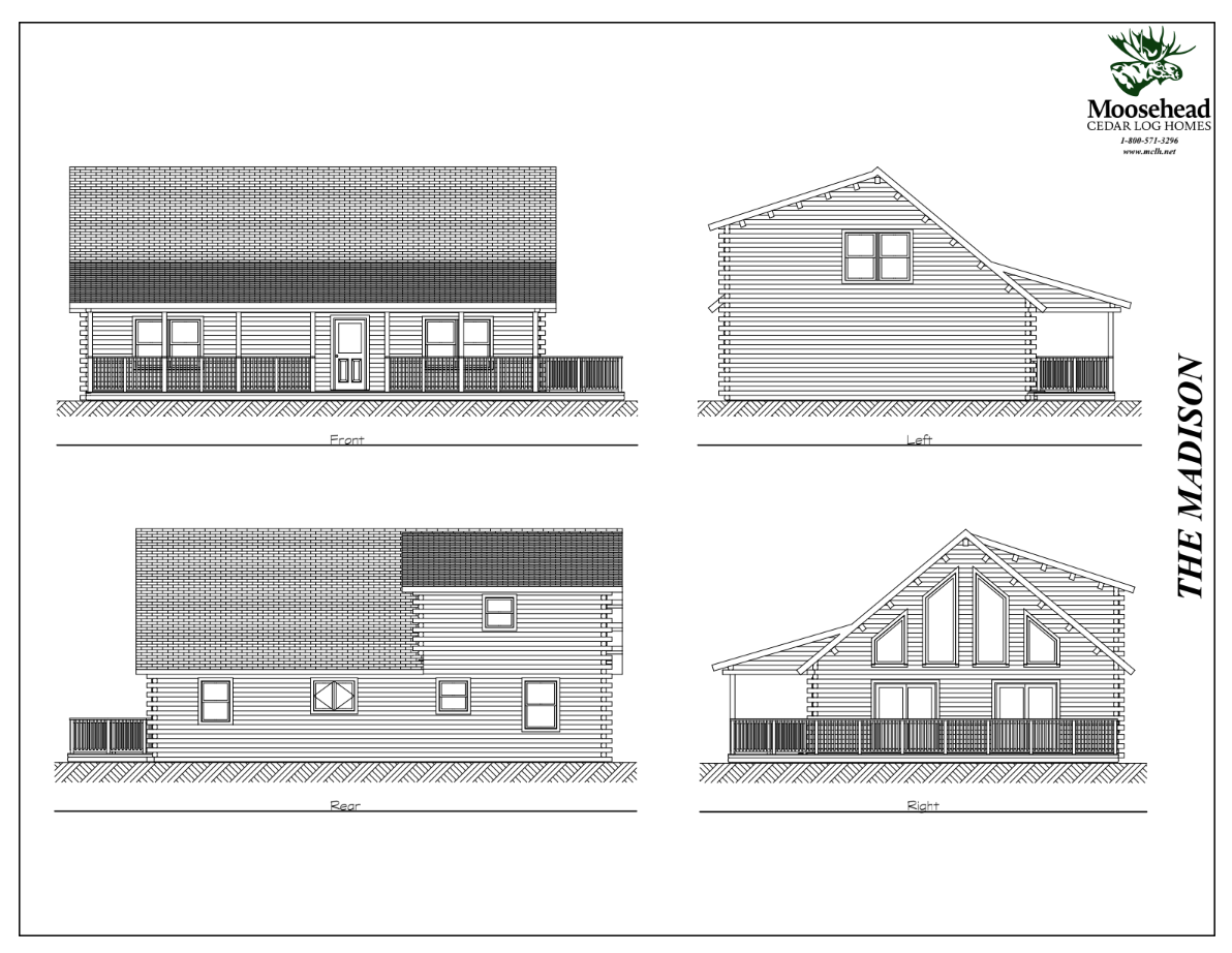
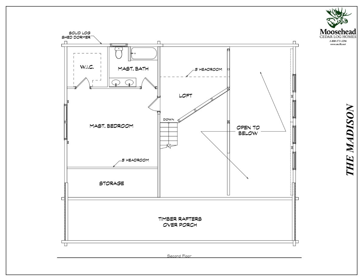
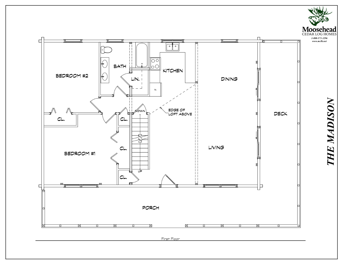
Madison
The Madison is easy to love. The large, covered porch spans the front and wraps around to a full side deck for ample outdoor living space, while inside, the vaulted great room offers floor to ceiling windows for unparalleled views. The conveniently designed kitchen is just off the great room, and leads to the two downstairs bedrooms and shared full bath. In the upstairs loft, the master suite features a large walk-in closet, full bathroom, and plenty of storage. Bring the outside in with the Madison.
Gallery
Some photos show customized options not included in the basic package.

