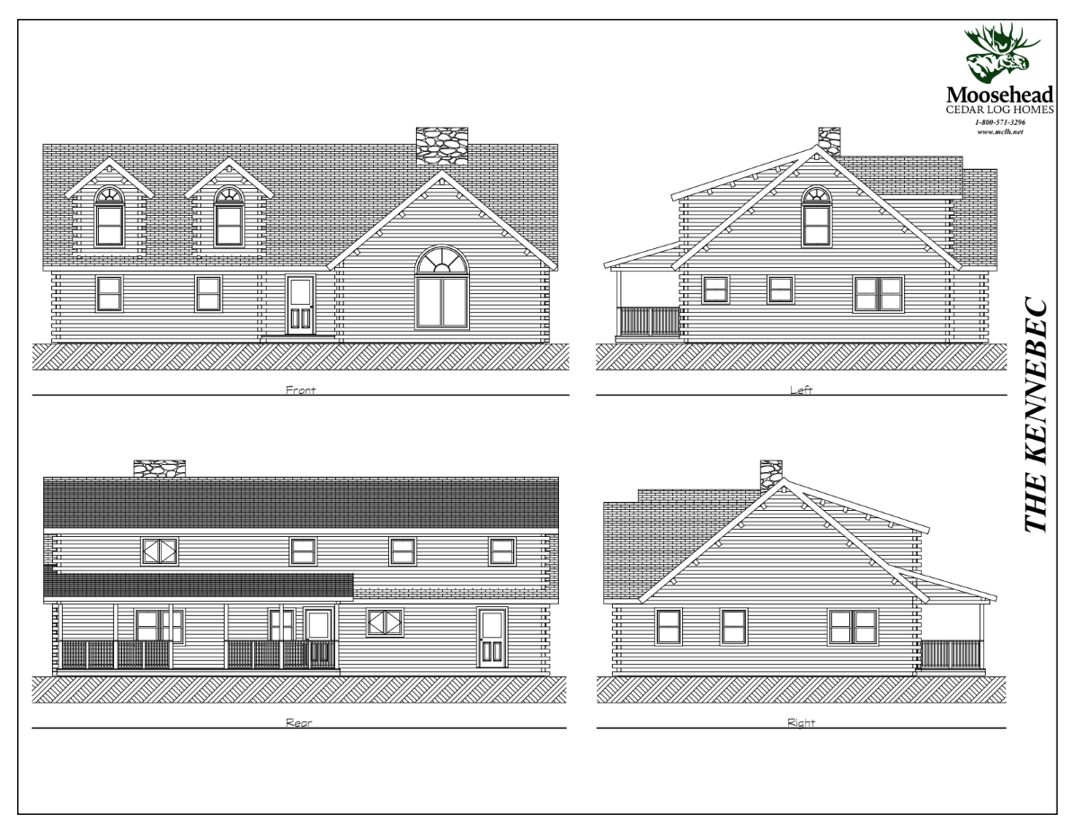
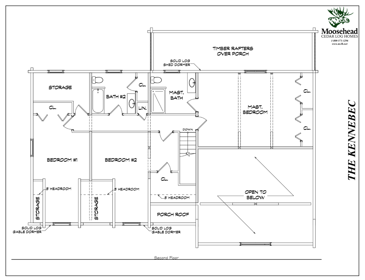
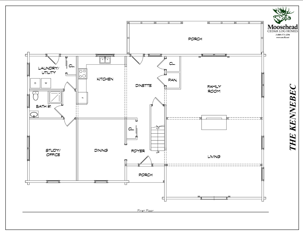
Kennebec
From the arched windowed dormers to the spectacular great room, the Kennebec is a truly impressive home. The large central foyer runs along the staircase, with plenty of closet space for all your guests. To the left is the dining room which opens up to the large eat-in kitchen with access to the back deck. From the kitchen, access the home office, bathroom, and laundry room with its own backdoor entrance. To the right of staircase, the cathedral ceiling soars above the grand living room, anchored by a central fireplace. Beyond the fireplace is the family room with access to the back porch. Upstairs is home to the master suite, two more bedrooms with a shared full bathroom, and plenty of storage. The Kennebec impresses from all angles, so get ready to entertain in style.
Gallery
Some photos show customized options not included in the basic package.

