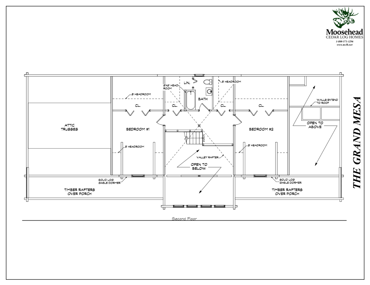
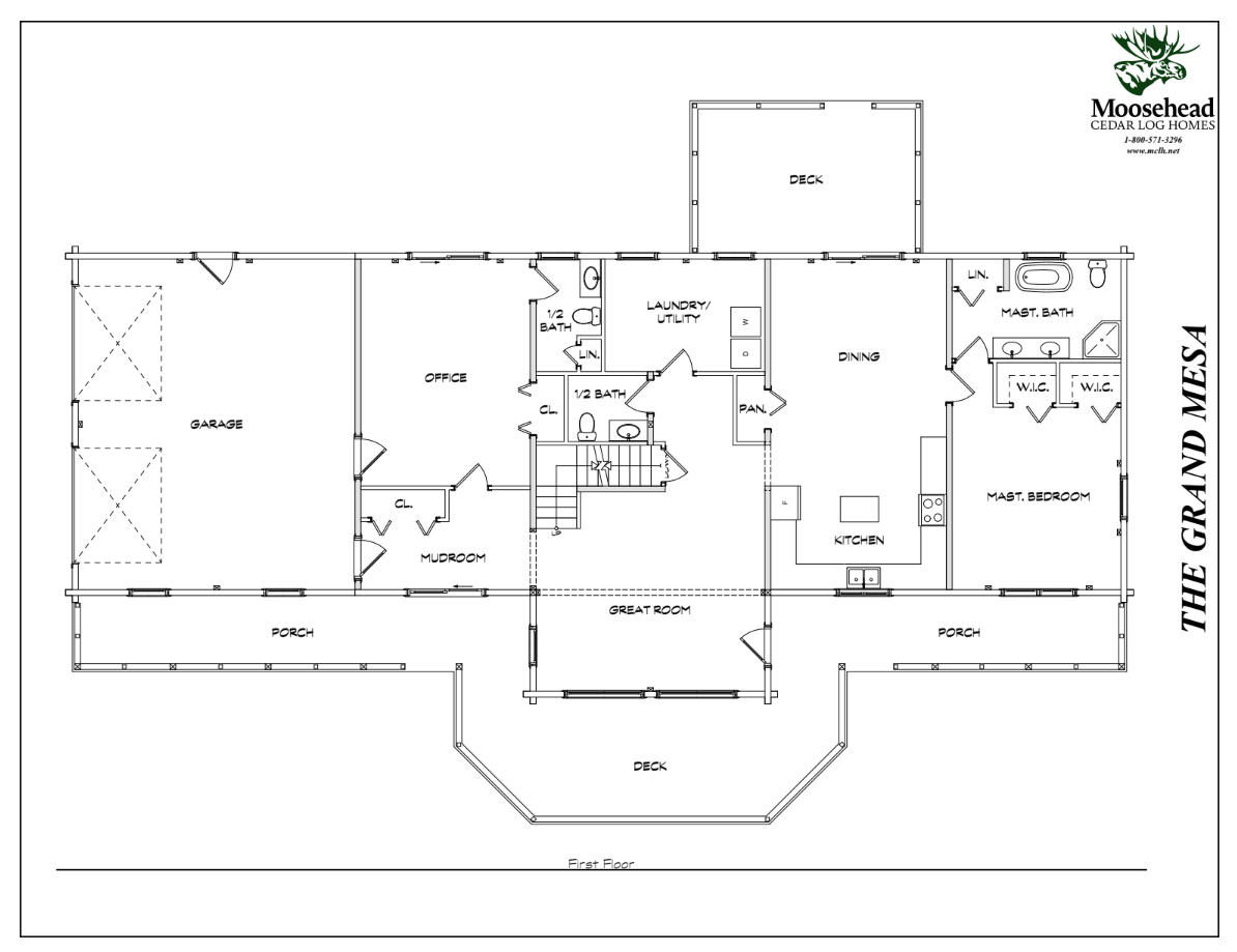
Grand Mesa
The Grand Mesa is a truly impressive home, commanding over 3,000 square feet of living space, plus outdoor spaces perfect for entertaining. Enter the main foyer from either the covered front porch or the attached two car garage, and find the home office with its own powder room and views to the backyard. Beyond the entry is the vaulted living room and access to the large laundry room, half bath, and spacious kitchen and dining room. The dining room opens up to a big back deck, or the master suite just down the hall. The master suite features double walk-in closets, a large bathroom, and private access to the front porch. Upstairs are two more bedrooms sharing a full bathroom, each with plenty of closet space. The Grand Mesa is ready to entertain year-round with plenty of space for the whole crew.

