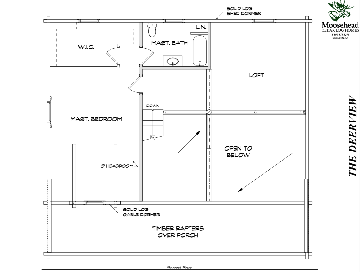
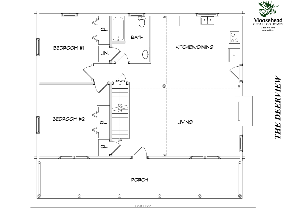
Deerview
The Deerview offers a simple, clean design in a charming package. From the covered front porch entry, the vaulted great room opens up on the right, with the spacious eat-in kitchen beyond. Two conveniently placed guest bedrooms and a full bathroom complete the first floor. Upstairs, the master suite features a balcony leading to a large loft, a full bathroom, and a big, bright walk-in closet. Live well and live simply in the Deerview.

