Cedarcrest
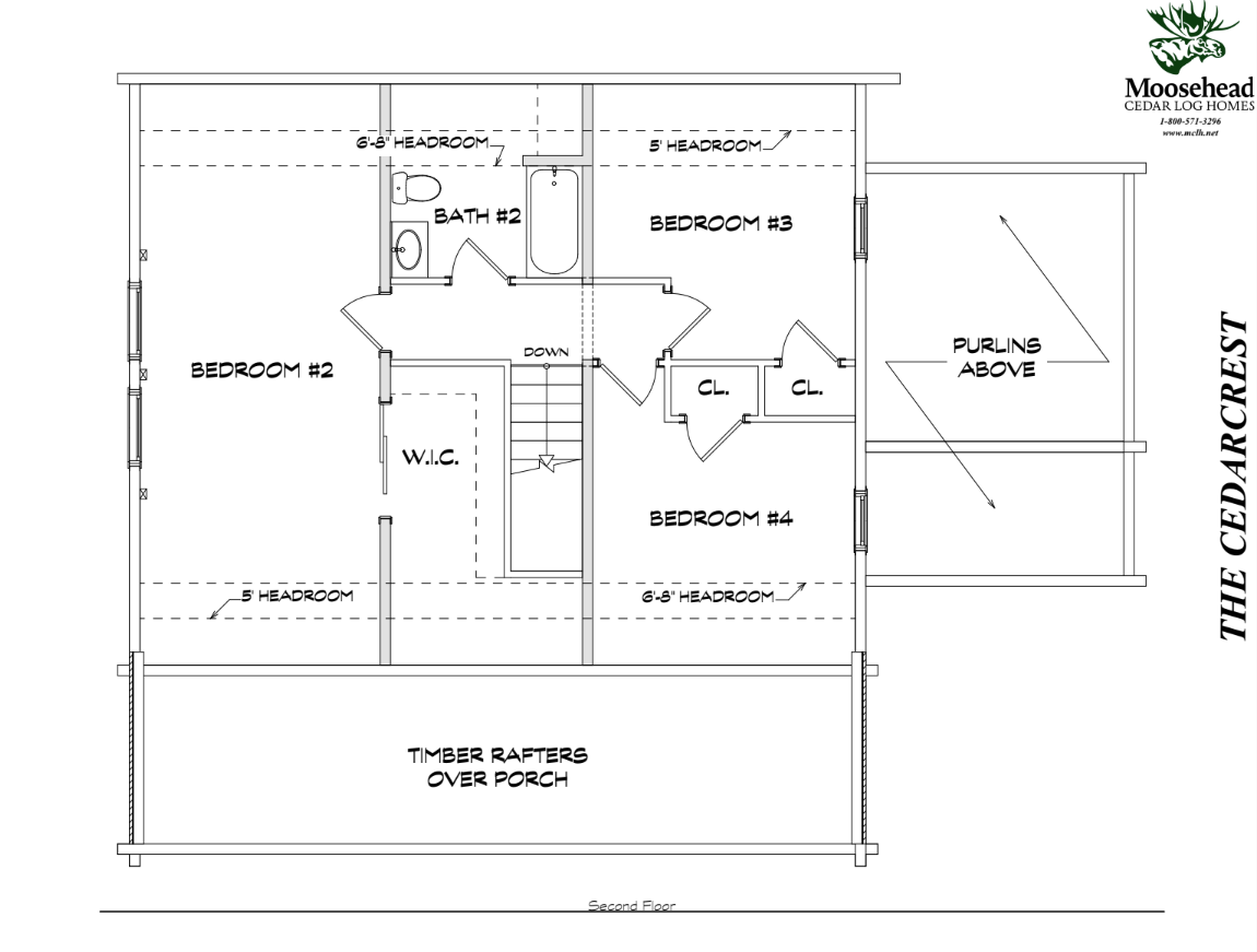
The Cedarcrest packs a lot of action into an efficient footprint. At just under 1,800 square feet, this gambrel-style home offers more space than most in its class. The classic entry hall along the staircase opens up to a front living room before continuing on to the first floor bedroom and full bath. On the right is the kitchen, which opens up to the dining room and family room- all three with plenty of storage. The family room opens to a second porch for even more space. Upstairs is a practical layout of three bedrooms and a full bathroom. The largest bedroom includes a huge walk-in closet. There’s room for everyone (and all their favorite things) with the Cedarcrest.

