Bridgewater
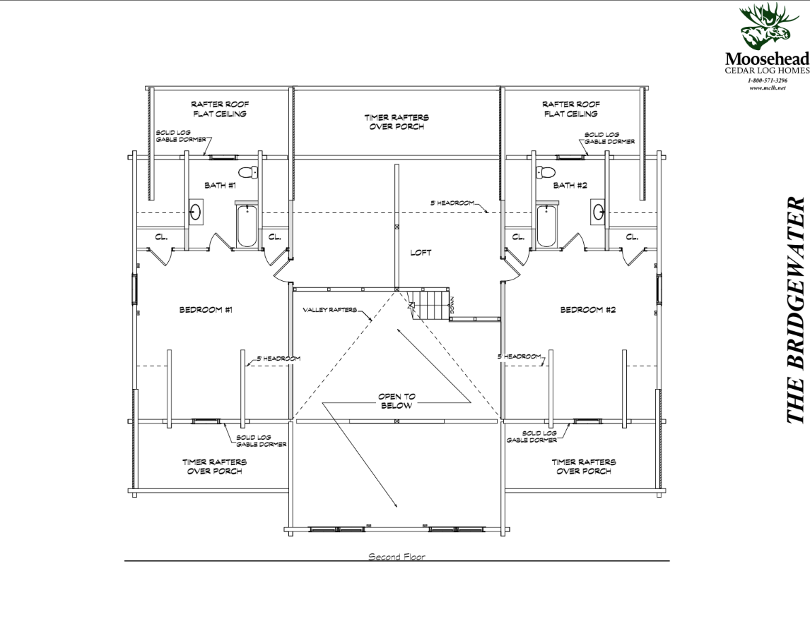
The Bridgewater is a real crowd pleaser. The large vaulted great room is the center of the action, but it just keeps getting better. The first floor master suite has two walk-in closets and private porch access- a real retreat just steps from the home office. Enter from the back porch to find a large laundry/mudroom and half bath. The spacious kitchen and dining room lead to a sunny breakfast nook, with three walls of windows and a view of the porch. Both upstairs bedrooms have their own attached bathrooms, so there’s space for everyone to feel at home. Spread out and enjoy the good life in the Bridgewater.

