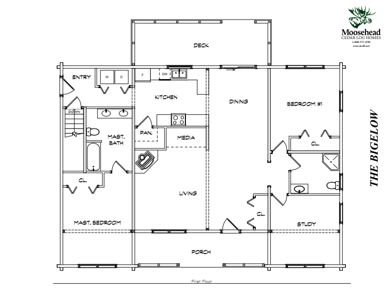
Bigelow
The Bigelow keeps it simple and convenient, without sacrificing style or comfort. The covered front porch entry opens to main living area, with the kitchen and dining room beyond. The large kitchen pantry offers plenty of storage, leaving the main space organized and open. Off the living room is the master suite, the guest bedroom and bathroom, and study. The dining room opens up to the large back deck, and through the kitchen is a back entryway with a laundry closet and basement access. Life is easy in the Bigelow!

